首页 > 裝修案例 > 180平华夏春晓现代风格-原木格调与生活空间的对话

180平华夏春晓现代风格-原木格调与生活空间的对话

风格:现代简约 面积:180m² 户型:4室 小区: 华夏春晓
业主需求
180平华夏春晓现代风格-原木格调与生活空间的对话-业主需求 180平华夏春晓现代风格-原木格调与生活空间的对话-业主需求
本案位于锡沪路与东亭路交汇处,整个户型空间开阔,南北通透。整体风格为日式,业主喜欢,恬静,淡雅,简洁的日式风,也适合喜欢安逸,宁静的老年人。
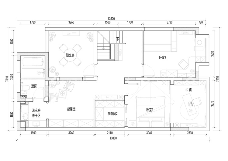
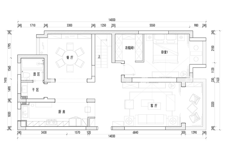
平面布置图
180平华夏春晓现代风格-原木格调与生活空间的对话-平面布置图 180平华夏春晓现代风格-原木格调与生活空间的对话-平面布置图
整个户型南北通透,客餐厅分开,独立的餐厅可以保证在用餐时专心用餐,不受电视等影响。所以卫生间干湿分离,二楼设起居室,一楼会客,二楼供居住者娱乐,休息,功能划分更合理。
3D全景图
180平华夏春晓现代风格-原木格调与生活空间的对话-3D全景图图标 180平华夏春晓现代风格-原木格调与生活空间的对话全景图封面图
#  现代简约  180m²  4室  效果图  #
140
不喜欢
猜你喜欢
关闭
按此效果装修多少钱?
电话咨询 在线咨询 算算我家报价
按此效果装修多少钱?
按此效果装修多少钱?
按此效果装修多少钱?
按此效果装修多少钱?