首页 > 裝修案例 > 180平满堂院现代风格-姿意的港式生活

180平满堂院现代风格-姿意的港式生活

风格:现代简约 面积:180m² 户型:3室 小区: 满堂院
业主需求
180平满堂院现代风格-姿意的港式生活-业主需求
本案位于东亭路与春塘路交汇处,整个户型空间开阔,格局优越,动静分区,功能分区合理。本案业主是幸福的三代同堂,男女主人拥有独特的高雅品味,喜爱运动,注重生活品质。设计师没有使用太多的修饰与约束,希望营造出不经意中的休闲港式浪漫。
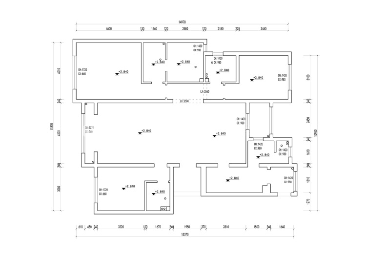
平面布置图
180平满堂院现代风格-姿意的港式生活-平面布置图
整个户型开阔,设计师稍作改动,将客餐厅与书房连为一条线,增加了视觉效果,通风与采光效果更佳。玄关设在进门前,更好的利用空间。主卧次卧设衣帽间,增加了储物功能,整个空间的使用率大大提高。
3D全景图
180平满堂院现代风格-姿意的港式生活-3D全景图图标 180平满堂院现代风格-姿意的港式生活全景图封面图
#  现代简约  180m²  3室  效果图  #
112
不喜欢
猜你喜欢
关闭
按此效果装修多少钱?
电话咨询 在线咨询 算算我家报价
按此效果装修多少钱?
按此效果装修多少钱?