首页 > 裝修案例 > 120平华发首府现代风格-温馨之家

120平华发首府现代风格-温馨之家

风格:现代简约 面积:120m² 户型:3室 小区: 华发首府
业主需求
120平华发首府现代风格-温馨之家-业主需求
原始结构南北通透,四开朝南,很适合居住,加上整体四房,可塑性比较高。
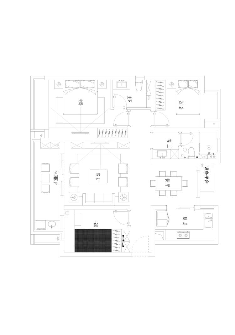
平面布置图
120平华发首府现代风格-温馨之家-平面布置图
整体色调上运用了多数为年色的穿插,比较经典,整体色调会偏暖,可通过照明去提升色度。
3D全景图
120平华发首府现代风格-温馨之家-3D全景图图标 120平华发首府现代风格-温馨之家全景图封面图
#  现代简约  120m²  3室  效果图  #
151
不喜欢
猜你喜欢
关闭
按此效果装修多少钱?
电话咨询 在线咨询 算算我家报价
按此效果装修多少钱?
按此效果装修多少钱?