首页 > 裝修案例 > 170平保利达江湾城简欧风格-婚房

170平保利达江湾城简欧风格-婚房

风格:原木风 面积:170m² 户型:3室 小区: 保利达江湾城
业主需求
170平保利达江湾城简欧风格-婚房-业主需求
房子大小很适合婚房,未来父母也可以起来居住。
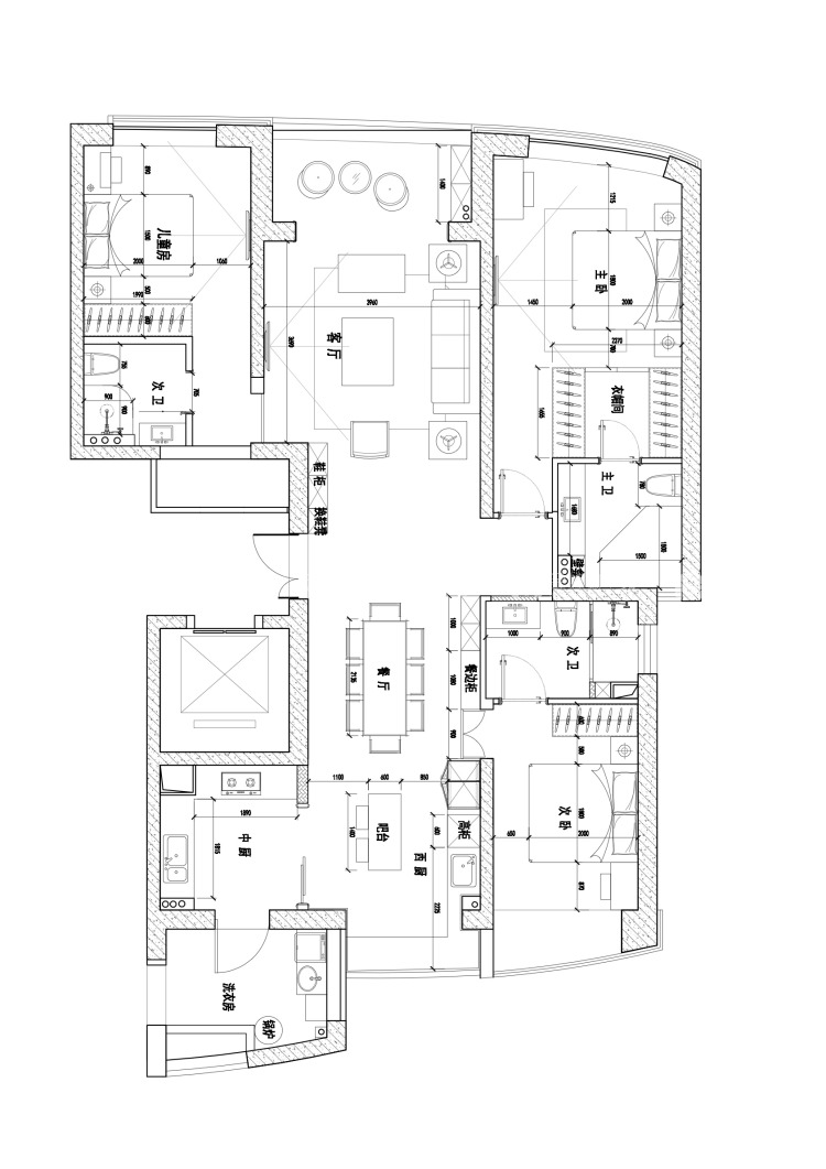
平面布置图
170平保利达江湾城简欧风格-婚房-平面布置图
整体硬装运用了少量的颜色,搭丰富的软装及配饰,现在整体显得会比较协调。
3D全景图
170平保利达江湾城简欧风格-婚房-3D全景图图标 170平保利达江湾城简欧风格-婚房全景图封面图
#  原木风  170m²  3室  效果图  #
181
不喜欢
猜你喜欢
关闭
按此效果装修多少钱?
电话咨询 在线咨询 算算我家报价
按此效果装修多少钱?
按此效果装修多少钱?