首页 > 裝修案例 > 120平海岸城现代风格

120平海岸城现代风格

风格:现代简约 面积:120m² 户型:3室 小区: 海岸城
业主需求
120平海岸城现代风格-业主需求
房子大小很适合婚房,给未来的孩子有提供了更多居住的地方。
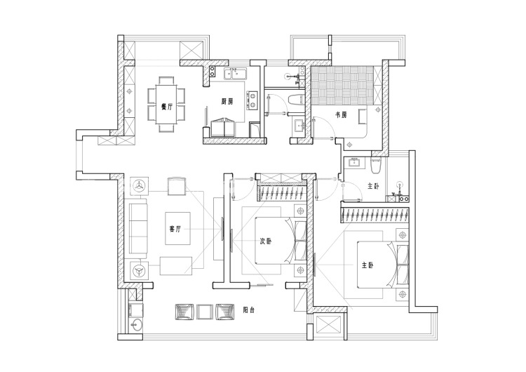
平面布置图
120平海岸城现代风格-平面布置图
整体设计添加了轻奢的元素,是本身具有古典三如虎添翼,更加有亮点,能够突出个人的品味。
3D全景图
120平海岸城现代风格-3D全景图图标 120平海岸城现代风格全景图封面图
#  现代简约  120m²  3室  效果图  #
128
不喜欢
猜你喜欢
关闭
按此效果装修多少钱?
电话咨询 在线咨询 算算我家报价
按此效果装修多少钱?
按此效果装修多少钱?