首页 > 裝修案例 > 89平保利融侨时光印象欧式风格-新古典婚房案例

89平保利融侨时光印象欧式风格-新古典婚房案例

风格:原木风 面积:89m² 户型:3室 小区: 保利融侨时光...
业主需求
89平保利融侨时光印象欧式风格-新古典婚房案例-业主需求
房子可以不大,但是从装饰上体现出业主的用心。
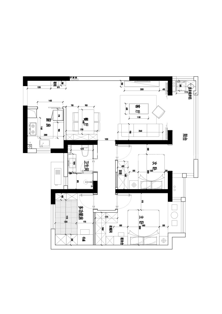
平面布置图
89平保利融侨时光印象欧式风格-新古典婚房案例-平面布置图
古典美与现实相结合,完美体现了爱情带来的结果,对于小两口来说意味着过去与未来美好的向往。
3D全景图
89平保利融侨时光印象欧式风格-新古典婚房案例-3D全景图图标 89平保利融侨时光印象欧式风格-新古典婚房案例全景图封面图
#  原木风  89m²  3室  效果图  #
134
不喜欢
猜你喜欢
关闭
按此效果装修多少钱?
电话咨询 在线咨询 算算我家报价
按此效果装修多少钱?
按此效果装修多少钱?