首页 > 裝修案例 > 110平江南府现代风格

110平江南府现代风格

风格:现代简约 面积:110m² 户型:3室 小区: 华润江南府
业主需求
110平江南府现代风格-业主需求
房子大小很适合婚房,未来父母也可以起来居住。
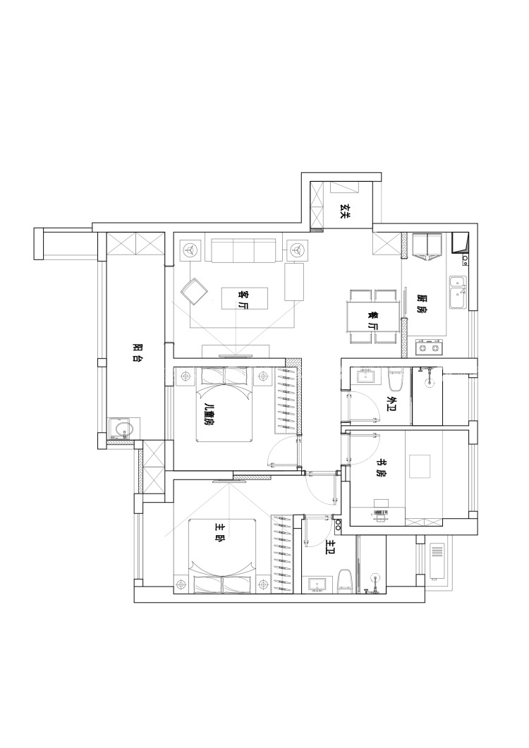
平面布置图
110平江南府现代风格-平面布置图
整体硬装运用了少量的颜色,搭丰富的软装及配饰,现在整体显得会比较协调。
3D全景图
110平江南府现代风格-3D全景图图标 110平江南府现代风格全景图封面图
#  现代简约  110m²  3室  效果图  #
182
不喜欢
猜你喜欢
关闭
按此效果装修多少钱?
电话咨询 在线咨询 算算我家报价
按此效果装修多少钱?
按此效果装修多少钱?