首页 > 裝修案例 > 136平悦湖国际新中式风格-简约温润中式之家

136平悦湖国际新中式风格-简约温润中式之家

风格:雅致新中 面积:136m² 户型:3室 小区: 悦湖国际
业主需求
136平悦湖国际新中式风格-简约温润中式之家-业主需求
本案位于洛社大道102号,厨房,餐厅,客厅连通布局,便利大气,厨房远离厅室,有效保洁。新中式风格讲究空间层次感和跳跃感,既丰富了空间,也体现了传统审美,线条流畅简单,精雕细琢,完美满足了业主不仅讲究好看,还要兼顾实用的原则。
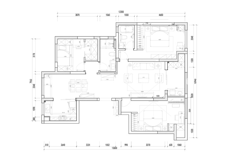
平面布置图
136平悦湖国际新中式风格-简约温润中式之家-平面布置图
客餐厅连通的设计给人宽敞空间感受,南北通透。横轴动线贯穿整个空间,功能区域划分井然。超大的阳台一分为二,加大了次卧的使用面积,更大化的利用了空间。客厅家具线条简约流畅,不同材质的运用和碰撞,凸显新中式风格特有的质感和美感。
3D全景图
136平悦湖国际新中式风格-简约温润中式之家-3D全景图图标 136平悦湖国际新中式风格-简约温润中式之家全景图封面图
#  雅致新中  136m²  3室  效果图  #
108
不喜欢
猜你喜欢
关闭
按此效果装修多少钱?
电话咨询 在线咨询 算算我家报价
按此效果装修多少钱?
按此效果装修多少钱?