首页 > 裝修案例 > 138平九龙仓碧玺现代风格-轻度的奢侈,低调的奢华

138平九龙仓碧玺现代风格-轻度的奢侈,低调的奢华

风格:现代简约 面积:138m² 户型:3室 小区: 九龙仓碧玺
业主需求
138平九龙仓碧玺现代风格-轻度的奢侈,低调的奢华-业主需求
户型是经典的三室两厅,根据业主对极致优雅的生活态度,最终选定了轻奢,这种不惹眼,不浮夸却又追求生活品味的风格设计,选用精致、复古、明亮的黄铜材质,在张力十足的线条勾勒、层次丰富的材质运用以及质感奢华的装饰细节下,为居住者带来一种奢雅的生活体验。
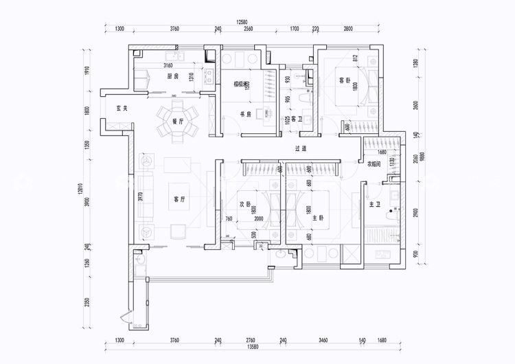
平面布置图
138平九龙仓碧玺现代风格-轻度的奢侈,低调的奢华-平面布置图
非常典型的三室两厅的布局,稍加改动,使空间合理利用,布局中几乎每个区域都设置柜体,保证了合理的收纳功能,选用精致、复古、明亮的黄铜材质,在张力十足的线条勾勒、层次丰富的材质运用以及质感奢华的装饰细节下,为居住者带来一种奢雅的生活体验。
3D全景图
138平九龙仓碧玺现代风格-轻度的奢侈,低调的奢华-3D全景图图标 138平九龙仓碧玺现代风格-轻度的奢侈,低调的奢华全景图封面图
#  现代简约  138m²  3室  效果图  #
148
不喜欢
猜你喜欢
关闭
按此效果装修多少钱?
电话咨询 在线咨询 算算我家报价
按此效果装修多少钱?
按此效果装修多少钱?