首页 > 裝修案例 > 138平九龙仓碧玺新中式风格-充满生活雅趣的闲居

138平九龙仓碧玺新中式风格-充满生活雅趣的闲居

风格:雅致新中 面积:138m² 户型:3室 小区: 九龙仓碧玺
业主需求
138平九龙仓碧玺新中式风格-充满生活雅趣的闲居-业主需求
整个户型,南北通透,是非常经典的三室两厅户型。根据业主的喜好需求,采用新中式风格,既复古又不失潮流,以山水为媒、以文化为精髓,将临平美景融入空间。
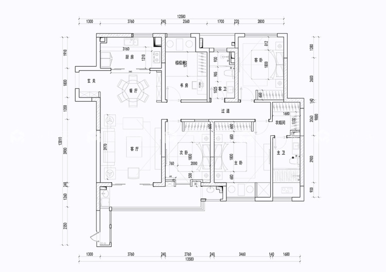
平面布置图
138平九龙仓碧玺新中式风格-充满生活雅趣的闲居-平面布置图
进入玄关引入眼帘的客厅设计,彰显了空间氛围的大气和雅致,设计师运用干脆利落的线条搭配简单明亮的新中式装饰元素,碰撞出生活的高级感,整体色调以胡桃木色和米灰色调的空间揉以传统中式居家陈设,以现代人的审美需求营造富有传统韵味的东方情怀,素雅之中不乏摩登。
3D全景图
138平九龙仓碧玺新中式风格-充满生活雅趣的闲居-3D全景图图标 138平九龙仓碧玺新中式风格-充满生活雅趣的闲居全景图封面图
#  雅致新中  138m²  3室  效果图  #
191
不喜欢
猜你喜欢
关闭
按此效果装修多少钱?
电话咨询 在线咨询 算算我家报价
按此效果装修多少钱?
按此效果装修多少钱?