首页 > 裝修案例 > 125平富力十号现代风格-高级灰的完美演绎

125平富力十号现代风格-高级灰的完美演绎

风格:现代简约 面积:125m² 户型:3室 小区: 富力十号
业主需求
125平富力十号现代风格-高级灰的完美演绎-业主需求
平面户型客厅通透,但房间之间分割太多,空间不能得到充分利用,因此采用较为简洁的现代风格,拆除多余墙体,能很好地放大空间的视觉感,空间色调以高级灰为主色调,显得时尚又不失沉稳。
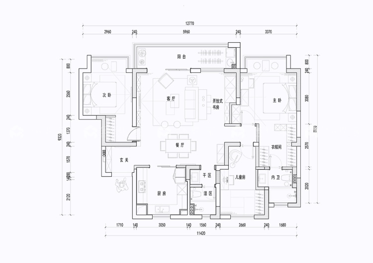
平面布置图
125平富力十号现代风格-高级灰的完美演绎-平面布置图
通透的客厅与书房相连,合理利用空间的同时,也增加了客厅的装饰性,通高的柜体简洁且具有拉高层高的视觉效果,不对称的电视背景墙时尚不死板,通过精致的软装饰品,挂画、家具细节等样式的组合搭配,浓缩着意想不到的功能与细节,每个元素都蕴藏着卓然的审美品位,形成接近生活又明显高于生活的气质。
3D全景图
125平富力十号现代风格-高级灰的完美演绎-3D全景图图标 125平富力十号现代风格-高级灰的完美演绎全景图封面图
#  现代简约  125m²  3室  效果图  #
182
不喜欢
猜你喜欢
关闭
按此效果装修多少钱?
电话咨询 在线咨询 算算我家报价
按此效果装修多少钱?
按此效果装修多少钱?