首页 > 裝修案例 > 现代轻奢 167复式

现代轻奢 167复式

风格:现代简约 面积:167m² 户型:3室 小区: 弘阳上水
业主需求
现代轻奢 167复式-业主需求 现代轻奢 167复式-业主需求
客户一家4口常住,父母偶尔过来住,喜欢现代轻奢带点禅意。
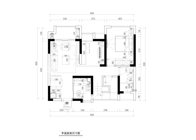
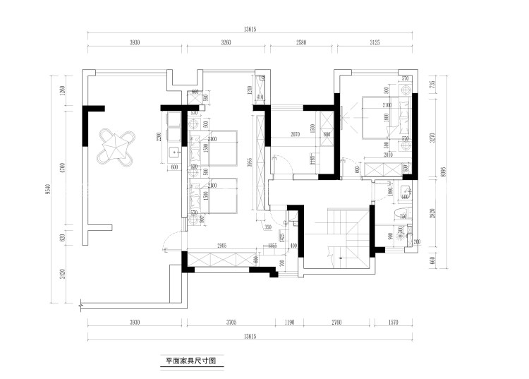
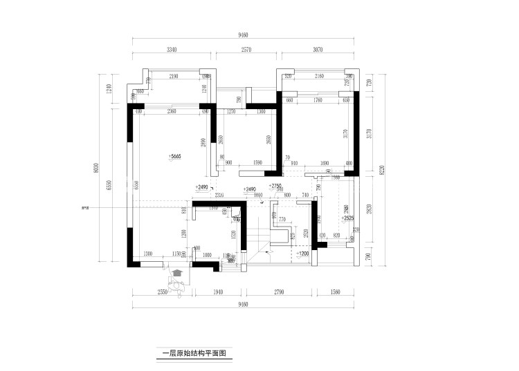
现代轻奢 167复式-平面布置图 现代轻奢 167复式-平面布置图
3D全景图
现代轻奢 167复式-3D全景图图标 现代轻奢 167复式全景图封面图
空间效果图
现代轻奢 167复式-空间效果图 现代轻奢 167复式-空间效果图 现代轻奢 167复式-空间效果图 现代轻奢 167复式-空间效果图
将禅意的雅与现代的质感融合在一起
现代轻奢 167复式-空间效果图 现代轻奢 167复式-空间效果图
经由精致简约线条来表达,让整体空间更趋于现代感;冷暖之间,相得益彰。
现代轻奢 167复式-空间效果图 现代轻奢 167复式-空间效果图
静谧是一种最为舒适的状态,空间保持中立平静的色彩;创造放松无压的睡眠空间。
#  现代简约  167m²  3室  效果图  #
138
不喜欢
猜你喜欢
关闭
按此效果装修多少钱?
电话咨询 在线咨询 算算我家报价
按此效果装修多少钱?
按此效果装修多少钱?
按此效果装修多少钱?
按此效果装修多少钱?
更多相似风格效果
按此效果装修多少钱?
更多相似风格效果
按此效果装修多少钱?
更多相似风格效果
按此效果装修多少钱?
更多相似风格效果
按此效果装修多少钱?
更多相似风格效果
按此效果装修多少钱?
更多相似风格效果
按此效果装修多少钱?
更多相似风格效果
按此效果装修多少钱?
更多相似风格效果
按此效果装修多少钱?