首页 > 裝修案例 > 享受安静时光的176平现代风装修案例

享受安静时光的176平现代风装修案例

风格:现代简约 面积:176m² 户型:3室 小区: 金桂尚苑
业主需求
享受安静时光的176平现代风装修案例-业主需求
本案户型南北通透,超大的客餐厅,全景落地玻璃。
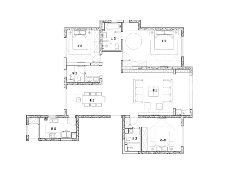
平面布置图
享受安静时光的176平现代风装修案例-平面布置图
业主喜欢读书,所以大客厅满足他们整面书柜的要求,坐着沙发上,随手拿一本喜欢的书籍阅读,享受属于自己的安静时光
3D全景图
享受安静时光的176平现代风装修案例-3D全景图图标 享受安静时光的176平现代风装修案例全景图封面图
#  现代简约  176m²  3室  效果图  #
198
不喜欢
猜你喜欢
关闭
按此效果装修多少钱?
电话咨询 在线咨询 算算我家报价
按此效果装修多少钱?
按此效果装修多少钱?