首页 > 裝修案例 > 【3D全景】北湖十六峯

【3D全景】北湖十六峯

风格:现代简约 面积:133m² 户型:3室 小区: 北湖十六峯
业主需求
【3D全景】北湖十六峯-业主需求
本案家庭是一组中年一家三口,孩子即将大学毕业,考虑着孩子将来有啦家庭后,可以周六日一起回来吃饭聚餐,房子选在市区边,离着北湖近,退休后可以在附近湖边散散步,钓钓鱼,远离城市啸喧,给生活多以些享受。
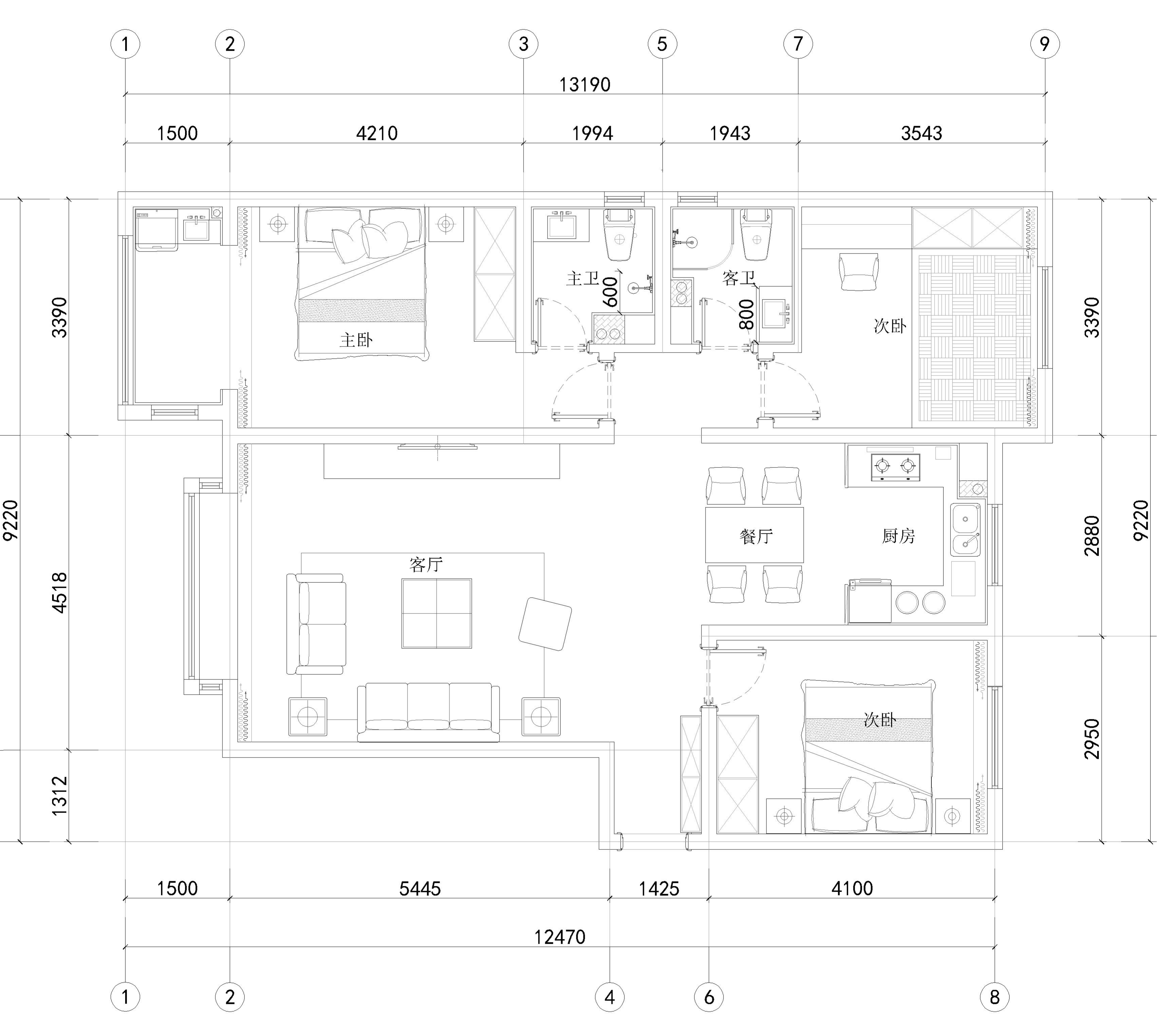
平面布置图
【3D全景】北湖十六峯-平面布置图
在设计中用简洁吊顶分开区域使每个空间有每个空间的得立体空间感,由于客户及家人喜欢简单整洁的配色色调都采用着色系。配上简洁的白色石膏线体与墙体立面搭配稳重大气,立面墙板采用温润的木色使家里充满温度,整体色调软硬呼应和谐不俗。
3D全景图
【3D全景】北湖十六峯-3D全景图图标 【3D全景】北湖十六峯全景图封面图
空间效果图
【3D全景】北湖十六峯-空间效果图
在设计中用简洁吊顶分开区域使每个空间有每个空间的得立体空间感,由于客户及家人喜欢简单整洁的配色色调都采用着色系。配上简洁的白色石膏线体与墙体立面搭配稳重大气,立面墙板采用温润的木色使家里充满温度,整体色调软硬呼应和谐不俗。
【3D全景】北湖十六峯-空间效果图
餐厅和厨房连接采用开放式厨房,增加采光扩大空间,用黑色玻璃隔断来分割厨房和餐厅黑色玻璃增加时尚呼应点缀色,拉高空间,从细节上将生活品质体现。
【3D全景】北湖十六峯-空间效果图 【3D全景】北湖十六峯-空间效果图
主卧主人考虑更加适合颜色定调为暖咖色,与白色吊顶与米色柜子顶角线搭配,采用布艺床头与清新挂画,不同层次的着色质感让空间整体呈现一致的协调性,舒适安静。
【3D全景】北湖十六峯-空间效果图 【3D全景】北湖十六峯-空间效果图 【3D全景】北湖十六峯-空间效果图
次卧将来成家后的孩子准备,主墙墙面色彩清新明亮,突出主墙,填充简洁的家具,呼应主题效果更加适合年轻人。
【3D全景】北湖十六峯-空间效果图
书房在西北角相对安静,相对光线柔和,做成榻榻米格局,增加利用空间,作为休闲储物功能空间。
【3D全景】北湖十六峯-空间效果图 【3D全景】北湖十六峯-空间效果图
#  现代简约  133m²  3室  效果图  #
该案例设计师
金螳螂家装修设计师宋淑康
宋淑康
设计经验 10年以上
更多设计案例
130
不喜欢
猜你喜欢
关闭
按此效果装修多少钱?
电话咨询 在线咨询 算算我家报价
按此效果装修多少钱?
按此效果装修多少钱?
更多相似风格效果
按此效果装修多少钱?
更多相似风格效果
按此效果装修多少钱?
更多相似风格效果
按此效果装修多少钱?
更多相似风格效果
按此效果装修多少钱?
更多相似风格效果
按此效果装修多少钱?
更多相似风格效果
按此效果装修多少钱?
更多相似风格效果
按此效果装修多少钱?
更多相似风格效果
按此效果装修多少钱?
更多相似风格效果
按此效果装修多少钱?
更多相似风格效果
按此效果装修多少钱?