首页 > 裝修案例 > 滏新家园

滏新家园

风格:其他 面积:141m² 户型:3室 小区: 滏新家园
业主需求
滏新家园-业主需求
业主是一对中年夫妇,此房为十五年前自己装修的,当时装修简单没有什么造型,时隔这么长时间材质整体偏陈旧,所以客户的意愿是打造一套清新亮丽的装修风格,引导客户做了这套小美式,其实对风格没有具体的定位,沟通后根据客户描述,了解到客户的真正需求,户型空间足够两口人使用,所以做了一些稍占空间的墙面护墙板造型,因为客厅在阴面,所以整体色调偏亮色,入户玄关处做了隔断处理将入户和客厅分割开,增加了点缀。
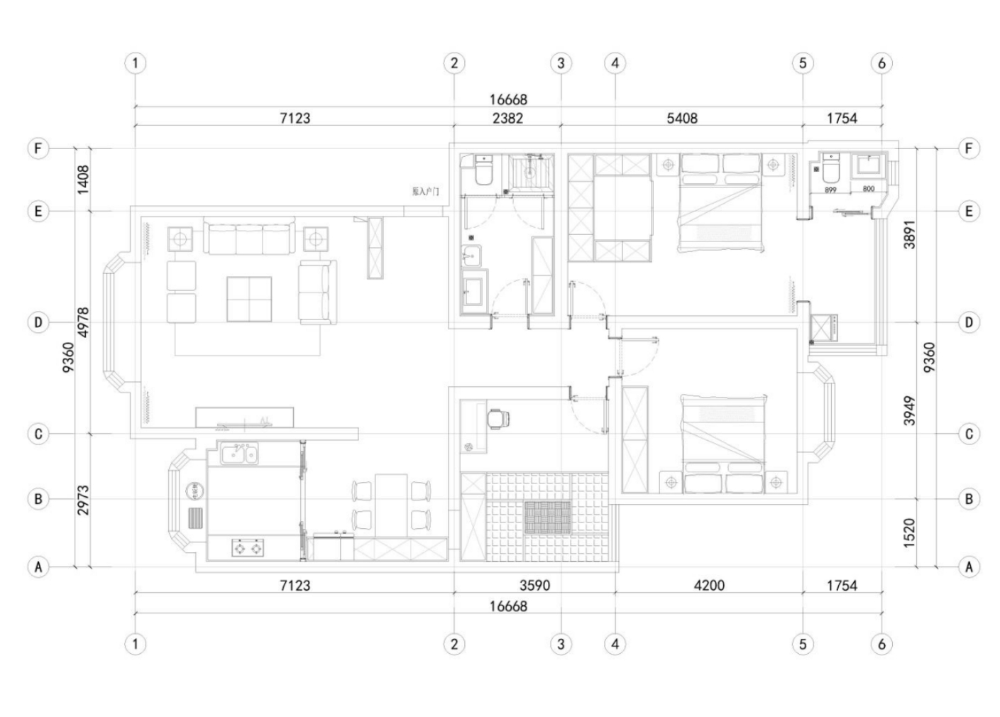
平面布置图
滏新家园-平面布置图
客户房子公摊小,所以每个空间都很充足,原本空旷的主卧室摆放了一组衣柜和一张双人床,经过沟通后把主卧室分成了衣帽间和卧室,空间利用率更高, 另外一间保留次卧,书房做了一组榻榻米,来增加储物,前期客户家里零碎东西较多,现在设计的空间能满足客户的基本需求。餐厅为了使用方便所以设计了一套餐边柜,且兼美观展示功能,大卫生间进行了原来布局改造,设置分区淋浴房空间更加规整,干湿分区使用方便。
3D全景图
滏新家园-3D全景图图标 滏新家园全景图封面图
空间效果图
滏新家园-空间效果图
电视墙做了护墙板材,增加了美式的风格元素,整体色调偏向柔和的暖色调电视墙比较大进行区域分割不显的过大,地面采用暖色大理石,整个空间光线更加柔和,暖洋洋舒服惬意。
滏新家园-空间效果图
餐厅增加了一组餐边柜,增加了储物和兼顾实用性,同样造型柜题增加了美观性。餐厅区域加入了储物展示柜,有了餐边柜和餐桌椅的搭配,同时加入了灯光的处理,增加了餐厅的空间感,显得不再单调,对面墙做了线条处理整面墙不在显得单调。
滏新家园-空间效果图
主卧室把原有的空间浪费整合成了衣帽间,增加了储物量,同时卧室空间也不再空旷。
滏新家园-空间效果图
书房做了榻榻米,兼顾使用休闲,同时储物做到了最大。后期生活用品都可以被收藏起来,客户很满意的储物功能。
#  其他  141m²  3室  效果图  #
该案例设计师
金螳螂家装修设计师宋江
宋江
设计经验 10年以上
更多设计案例
121
不喜欢
猜你喜欢
关闭
按此效果装修多少钱?
电话咨询 在线咨询 算算我家报价
按此效果装修多少钱?
按此效果装修多少钱?
更多相似风格效果
按此效果装修多少钱?
更多相似风格效果
按此效果装修多少钱?
更多相似风格效果
按此效果装修多少钱?
更多相似风格效果
按此效果装修多少钱?