首页 > 裝修案例 > 舒适轻享家

舒适轻享家

风格:其他 面积:220m² 户型:3室 小区: 东岸花园
业主需求
舒适轻享家-业主需求 舒适轻享家-业主需求
本案一家四口,夫妻二人和一对小儿女,夫妻两希望一楼空间能够大一些,方便孩子活动。
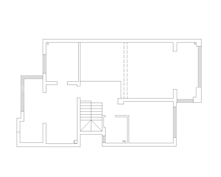
平面布置图
舒适轻享家-平面布置图 舒适轻享家-平面布置图
客厅和房间打通,增设了西厨,一楼整体功能完善。
空间效果图
舒适轻享家-空间效果图
一楼的房间和客厅打通,增大儿童活动区,客厅空间也更加开阔。
舒适轻享家-空间效果图
西厨和餐厅的餐边柜,满足了不同的储物要求,餐桌与顶面造型遥遥呼应。
舒适轻享家-空间效果图
主卧色系统一,简单温馨,同时满足男女业主的需求。
舒适轻享家-空间效果图
女儿房增加了一些童趣,同时又兼顾了女儿不同年龄段的居住需求,格调温馨自然。
舒适轻享家-空间效果图
儿子房整体硬装风格简单,在配饰上更加童趣。
#  其他  220m²  3室  效果图  #
该案例设计师
金螳螂家装修设计师张婷
张婷
设计经验 10年以上
更多设计案例
200
不喜欢
猜你喜欢
关闭
按此效果装修多少钱?
电话咨询 在线咨询 算算我家报价
按此效果装修多少钱?
按此效果装修多少钱?
按此效果装修多少钱?
按此效果装修多少钱?
更多相似风格效果
按此效果装修多少钱?
更多相似风格效果
按此效果装修多少钱?
更多相似风格效果
按此效果装修多少钱?
更多相似风格效果
按此效果装修多少钱?
更多相似风格效果
按此效果装修多少钱?