首页 > 裝修案例 > 小小的空间,大大的格局,流淌的暖意

小小的空间,大大的格局,流淌的暖意

业主需求
小小的空间,大大的格局,流淌的暖意-业主需求 小小的空间,大大的格局,流淌的暖意-业主需求 小小的空间,大大的格局,流淌的暖意-业主需求
原建筑比较方正,采光通风良好.
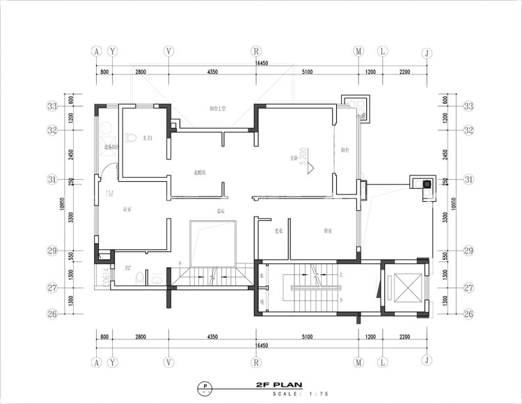
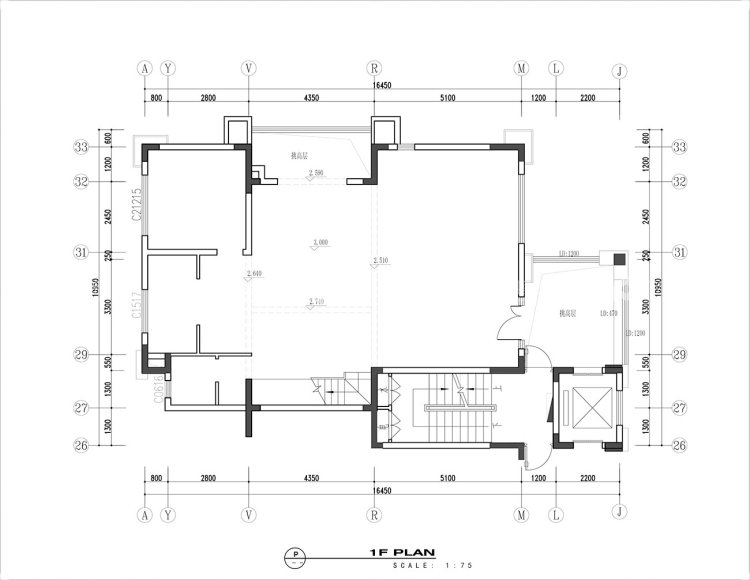
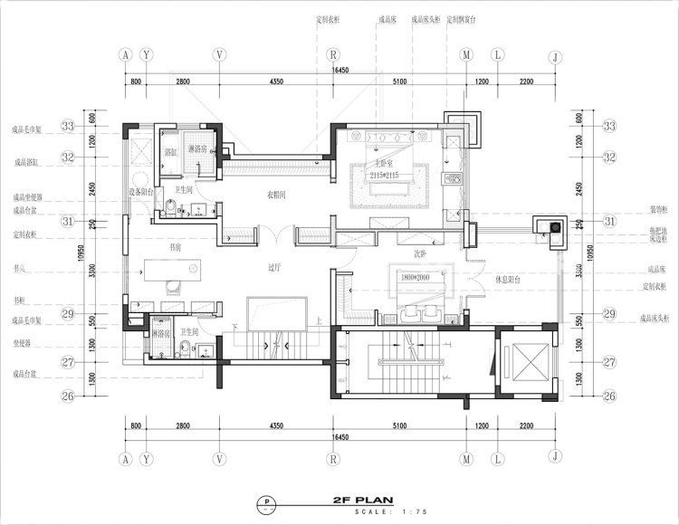
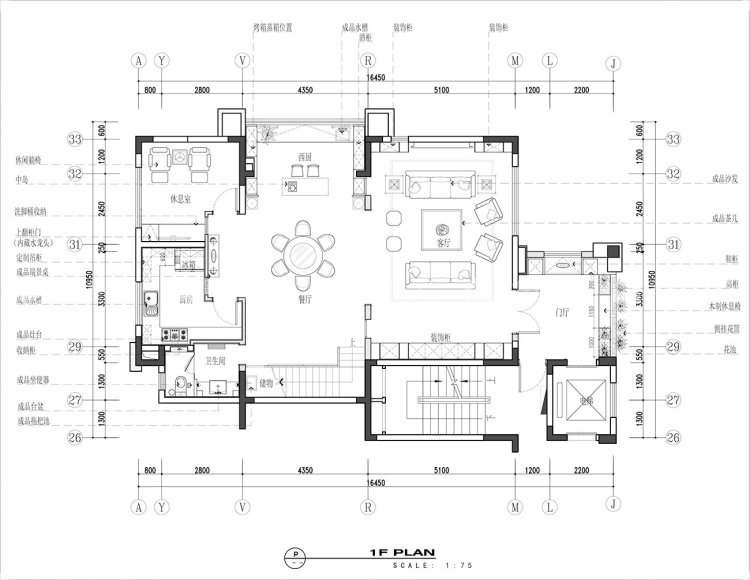
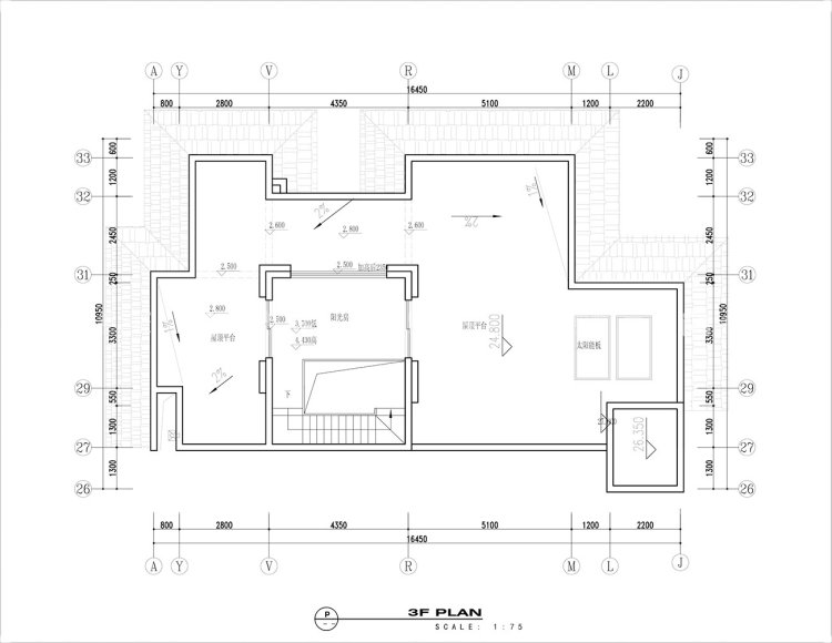
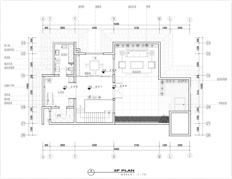
平面布置图
小小的空间,大大的格局,流淌的暖意-平面布置图 小小的空间,大大的格局,流淌的暖意-平面布置图 小小的空间,大大的格局,流淌的暖意-平面布置图
在保留原建筑大气的面貌下,合理分割居住空间,更多的注重于意境和氛围的营造上.
3D全景图
小小的空间,大大的格局,流淌的暖意-3D全景图图标 小小的空间,大大的格局,流淌的暖意全景图封面图
#  雅致新中  350m²  跃层/复式  效果图  #
103
不喜欢
猜你喜欢
关闭
按此效果装修多少钱?
电话咨询 在线咨询 算算我家报价
按此效果装修多少钱?
按此效果装修多少钱?
按此效果装修多少钱?
按此效果装修多少钱?
按此效果装修多少钱?
按此效果装修多少钱?