首页 > 裝修案例 > 90后小情侣都酷爱的轻奢风

90后小情侣都酷爱的轻奢风

风格:其他 面积:128m² 户型:3室 小区: 蠡湖院子
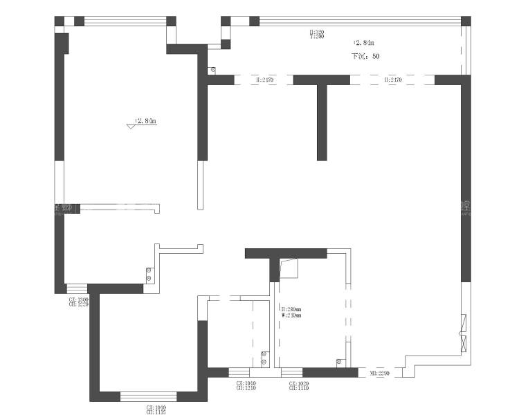
业主需求
90后小情侣都酷爱的轻奢风-业主需求
紧凑小三房,改造做两居室,业主自己独住,要求美式轻奢。 原结构两个卫生间和房门有尴尬冲突之处,主卧室空间局促。
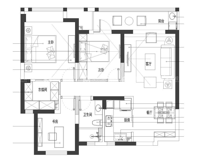
平面布置图
90后小情侣都酷爱的轻奢风-平面布置图
设计运用石膏线设计,全屋烟灰基色调,配有黄铜质感的灯具和餐桌,轻奢感觉渐渐品鉴。
3D全景图
90后小情侣都酷爱的轻奢风-3D全景图图标 90后小情侣都酷爱的轻奢风全景图封面图
#  其他  128m²  3室  效果图  #
178
不喜欢
猜你喜欢
关闭
按此效果装修多少钱?
电话咨询 在线咨询 算算我家报价
按此效果装修多少钱?
按此效果装修多少钱?