首页 > 裝修案例 > 典雅精致的美式轻奢风底复

典雅精致的美式轻奢风底复

风格:其他 面积:240m² 户型:跃层/复式 小区: 瑷颐湾
业主需求
典雅精致的美式轻奢风底复-业主需求 典雅精致的美式轻奢风底复-业主需求 典雅精致的美式轻奢风底复-业主需求
男业主35岁左右,常驻国外,房子父母住的多,寒暑假带孩子回国住。要求简美风格,但是其岳母想要年轻化一点,最终选定做美式轻奢风格。
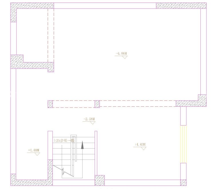
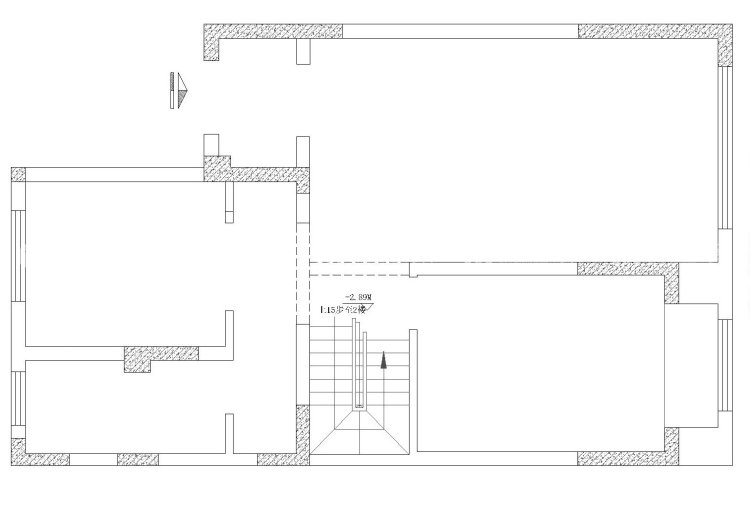
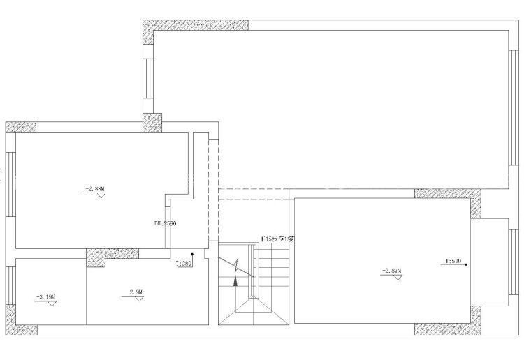
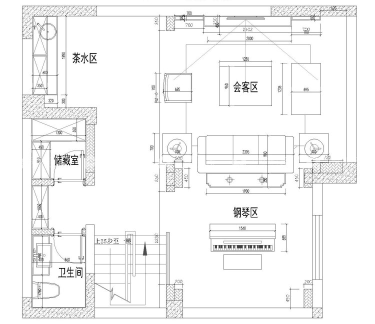
平面布置图
典雅精致的美式轻奢风底复-平面布置图 典雅精致的美式轻奢风底复-平面布置图 典雅精致的美式轻奢风底复-平面布置图
一楼舍弃一间房间扩充了餐厅的空间,沙发墙做金属隔断设计,空间隔断而视觉不隔断,让客餐厅更好的相结合。墙面以浅色为主,配置跳色配饰彰显活跃。 地下做娱乐空间为主,为了采光和储物功能做了现浇挑空层。 三楼主要以主卧室为主,三个卧室必需要有衣帽间。
3D全景图
典雅精致的美式轻奢风底复-3D全景图图标 典雅精致的美式轻奢风底复全景图封面图
#  其他  240m²  跃层/复式  效果图  #
186
不喜欢
猜你喜欢
关闭
按此效果装修多少钱?
电话咨询 在线咨询 算算我家报价
按此效果装修多少钱?
按此效果装修多少钱?
按此效果装修多少钱?
按此效果装修多少钱?
按此效果装修多少钱?
按此效果装修多少钱?