首页 > 裝修案例 > 传统典雅的中式居所

传统典雅的中式居所

风格:雅致新中 面积:166m² 户型:5室 小区: 海岸城
业主需求
传统典雅的中式居所-业主需求
该小区地段优良,靠近海岸城商业街,交通便利,整个空间比较通透,根据业主的需求:要大气,富有内涵传统气息,所以选择了中式风格,由于家庭成员较多,所以保留了多个房间,并注重收纳。以此为基础进行深入沟通后,开始逐步深化设计。
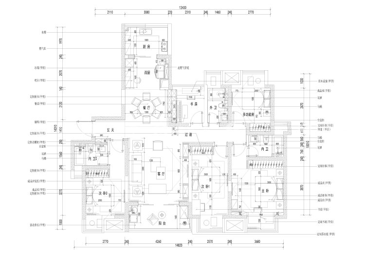
平面布置图
传统典雅的中式居所-平面布置图
保留了5个房间,其中多功能房,一房多用,书房可以很好地满足业主的业余兴趣,便于陶冶情操。整个户型南北通透,客餐厅方正,采光良好,厨房采用中厨和西厨两相结合的方法,既实现了美观,也很好地阻隔了油烟,3个卧室都在保证了采光的同时,又考虑到整体的收纳,使空间更实用。整体搭配、布局、提取传统家具的元素精华,具有十足的层次感,尽显传统艺术脉络的传承。
3D全景图
传统典雅的中式居所-3D全景图图标 传统典雅的中式居所全景图封面图
#  雅致新中  166m²  5室  效果图  #
172
不喜欢
猜你喜欢
关闭
按此效果装修多少钱?
电话咨询 在线咨询 算算我家报价
按此效果装修多少钱?
按此效果装修多少钱?