首页 > 裝修案例 > 轻盈惬意的湖畔别墅

轻盈惬意的湖畔别墅

风格:现代简约 面积:220m² 户型:别墅 小区: 阿卡迪亚
业主需求
轻盈惬意的湖畔别墅-业主需求 轻盈惬意的湖畔别墅-业主需求 轻盈惬意的湖畔别墅-业主需求
该户型为3层联排别墅,整体呈现一个长方形,空间开阔,较适合设计布局,南北通透,客厅阳台采光良好,厨房开阔,可以每层划分不同的功能区域,不互相影响。在与设计师多次沟通下,港式风格更能体现出业主想要的舒适度、给人轻松惬意的感觉。
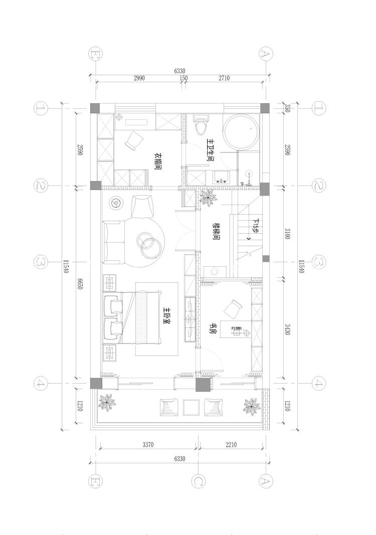
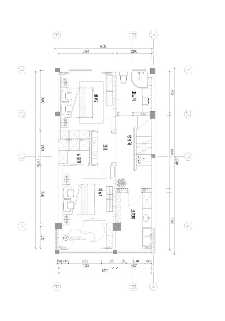
平面布置图
轻盈惬意的湖畔别墅-平面布置图 轻盈惬意的湖畔别墅-平面布置图 轻盈惬意的湖畔别墅-平面布置图
根据业主的想法与需求,设计师将空间功能划分为1层的休闲就餐区,与2-3层的生活区域,这样一来可以做到互不影响,多处制作的储物柜,保证了空间的合理收纳,同时保留了原来空间的开阔,可谓是一举两得,一楼的客厅连着庭院,二三楼阳台连着卧室,使整个空间宽敞明亮;开放式厨房增加了空间的通透性与时尚感,卧室采用套房形式,紧紧围绕时尚、舒适、自然的设计理念,营造出休闲感。
3D全景图
轻盈惬意的湖畔别墅-3D全景图图标 轻盈惬意的湖畔别墅全景图封面图
#  现代简约  220m²  别墅  效果图  #
103
不喜欢
猜你喜欢
关闭
按此效果装修多少钱?
电话咨询 在线咨询 算算我家报价
按此效果装修多少钱?
按此效果装修多少钱?
按此效果装修多少钱?
按此效果装修多少钱?
按此效果装修多少钱?
按此效果装修多少钱?