首页 > 裝修案例 > 恬静自然的舒125㎡北欧风适居所

恬静自然的舒125㎡北欧风适居所

风格:原木风 面积:125m² 户型:3室 小区: 宝能城
业主需求
恬静自然的舒125㎡北欧风适居所-业主需求
整个户型看上去比较紧凑,厨房较小,不够开阔,客厅比较方正,与阳台相连,南北通透。根据业主的喜好需求,采用北欧约风格,要干净简洁,注重收纳,要干净简洁,注重收纳,充分展现了人性、自然、舒适、和谐的理念,使整个空间更具有人情味。
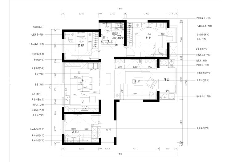
平面布置图
恬静自然的舒125㎡北欧风适居所-平面布置图
户型整体呈现“L”型,稍加改动,成为了非常典型的三室两厅的布局,由于厨房较小,所以拆除了多余的墙体,厨房和餐厅合二为一,使空间合理利用,并留了移门空间,方便后期改封闭式厨房。进门处和次卧制作了双边柜体,保证了合理的收纳功能,最大化的从视觉上改善了户型紧凑的缺陷,更为通透。
3D全景图
恬静自然的舒125㎡北欧风适居所-3D全景图图标 恬静自然的舒125㎡北欧风适居所全景图封面图
#  原木风  125m²  3室  效果图  #
150
不喜欢
猜你喜欢
关闭
按此效果装修多少钱?
电话咨询 在线咨询 算算我家报价
按此效果装修多少钱?
按此效果装修多少钱?