首页 > 裝修案例 > 淡雅柔和的港式风桃园别墅

淡雅柔和的港式风桃园别墅

风格:现代简约 面积:390m² 户型:别墅 小区: 福源华庭
业主需求
淡雅柔和的港式风桃园别墅-业主需求 淡雅柔和的港式风桃园别墅-业主需求 淡雅柔和的港式风桃园别墅-业主需求 淡雅柔和的港式风桃园别墅-业主需求 淡雅柔和的港式风桃园别墅-业主需求
该户型为5层别墅,内含1层地下室,位于锡山区,离市区较远,更适合休闲生活,根据客户要求,先择了时尚的港式风格设计,为家庭制造更加温馨的氛围,希望在家里能娱乐、居住、休闲、相结合,以此些为基础,再深入沟通后,开始逐步深化设计。
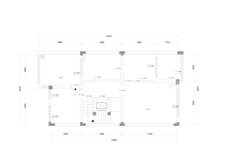
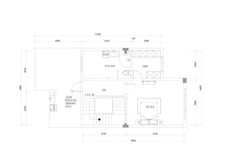
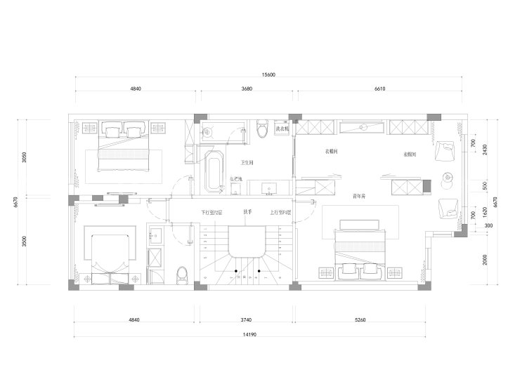
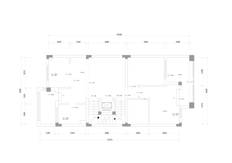
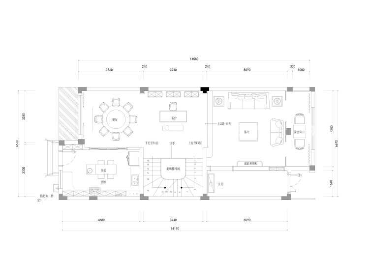
平面布置图
淡雅柔和的港式风桃园别墅-平面布置图 淡雅柔和的港式风桃园别墅-平面布置图 淡雅柔和的港式风桃园别墅-平面布置图 淡雅柔和的港式风桃园别墅-平面布置图 淡雅柔和的港式风桃园别墅-平面布置图
对格局进行了一些修改,敲掉了多余的墙体,使空间更加开阔,南北通透,每层都设置了可以休息的地方,以人为本,把居住和娱乐分层,互不影响。其中设置了棋牌室,茶室等休闲娱乐场所,可以足不出户丰富业余生活,让生活更具乐趣。
3D全景图
淡雅柔和的港式风桃园别墅-3D全景图图标 淡雅柔和的港式风桃园别墅全景图封面图
#  现代简约  390m²  别墅  效果图  #
183
不喜欢
猜你喜欢
关闭
按此效果装修多少钱?
电话咨询 在线咨询 算算我家报价
按此效果装修多少钱?
按此效果装修多少钱?
按此效果装修多少钱?
按此效果装修多少钱?
按此效果装修多少钱?
按此效果装修多少钱?
按此效果装修多少钱?
按此效果装修多少钱?
按此效果装修多少钱?
按此效果装修多少钱?