首页 > 裝修案例 > 现代黑白灰,后精英主义生活方式

现代黑白灰,后精英主义生活方式

风格:现代简约 面积:139m² 户型:4室 小区: 玉兰花园
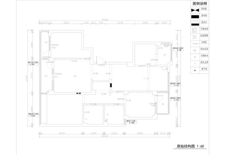
业主需求
现代黑白灰,后精英主义生活方式-业主需求
1.户型方正,但不怎么通透 2.相对总面积来说,客餐厅略小,且很多锐角,但结构可以改造 3.朝南大阳台很实用。
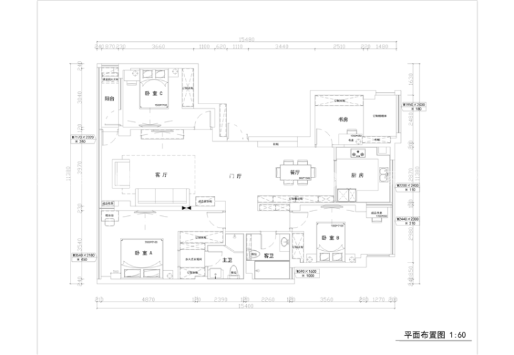
平面布置图
现代黑白灰,后精英主义生活方式-平面布置图
1.门厅处墙体敲除,使得南北通透,客餐厅视野更开阔 2.大阳台一分为二,客厅方向直接划分给客厅,使得客厅更加气派 3.将原过道正对进户门的墙体敲除,而将餐厅对北卧的墙体以柜体的方式延伸,形成装饰性隔断,既美观大方,又增加储藏功能。 4.将主卧飘窗敲除,再向内卫借一点空间,搭建主卧衣帽间,既增加储藏功能,又隔离开床与卫生间,使用更顺心,从风水上来说,也更适宜。 5.将北面两个房间的阳台敲除,均增大空间,西北房间设计榻榻米,兼具书房与客卧功能 而东北次卧则直接增加书房功能,利用北向柔和的阳光,更利于学习办公,也更
3D全景图
现代黑白灰,后精英主义生活方式-3D全景图图标 现代黑白灰,后精英主义生活方式全景图封面图
#  现代简约  139m²  4室  效果图  #
102
不喜欢
猜你喜欢
关闭
按此效果装修多少钱?
电话咨询 在线咨询 算算我家报价
按此效果装修多少钱?
按此效果装修多少钱?