首页 > 裝修案例 > 现代轻奢|走进家门,生活刚刚好

现代轻奢|走进家门,生活刚刚好

风格:其他 面积:137m² 户型:3室 小区: 玉兰璟园
业主需求
现代轻奢|走进家门,生活刚刚好-业主需求
1.户型方正 2.餐厅门厅比较小,不气派。 3.厨房空间较小,达不到业主想要的功能要求
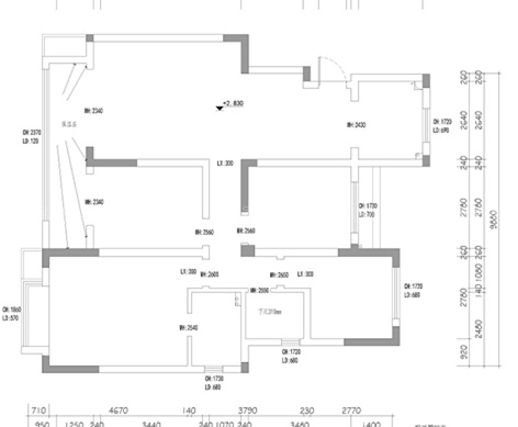
平面布置图
现代轻奢|走进家门,生活刚刚好-平面布置图
1. 厨房在不改变原有大小的情况下,将冰箱放在厨房内,蒸箱烤箱都放置到扩大的餐厅空间的一体柜中。 2.餐厅扩大,显得空间更气派。 3.客厅与阳台打通,使客厅空间更宽敞,钢琴放置在客厅里,为整个空间增添了艺术气息 4.每个空间都大量规划了储藏空间,大大满足了储物需求。
3D全景图
现代轻奢|走进家门,生活刚刚好-3D全景图图标 现代轻奢|走进家门,生活刚刚好全景图封面图
#  其他  137m²  3室  效果图  #
140
不喜欢
猜你喜欢
关闭
按此效果装修多少钱?
电话咨询 在线咨询 算算我家报价
按此效果装修多少钱?
按此效果装修多少钱?