首页 > 裝修案例 > 简约而不简单的128㎡现代风案例

简约而不简单的128㎡现代风案例

风格:现代简约 面积:128m² 户型:4室 小区: 中海凤凰熙岸
业主需求
简约而不简单的128㎡现代风案例-业主需求
户型南北通透,朝南2个卧室及客厅,房间方正,利于改造及空间布局。
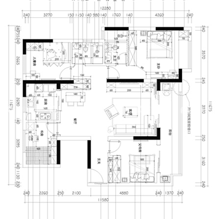
平面布置图
简约而不简单的128㎡现代风案例-平面布置图
入户玄关很好的把入户和客厅连接起来,形成独立空间,客厅餐厅南北通透,与阳台形成完整空间。
3D全景图
简约而不简单的128㎡现代风案例-3D全景图图标 简约而不简单的128㎡现代风案例全景图封面图
#  现代简约  128m²  4室  效果图  #
189
不喜欢
猜你喜欢
关闭
按此效果装修多少钱?
电话咨询 在线咨询 算算我家报价
按此效果装修多少钱?
按此效果装修多少钱?