首页 > 裝修案例 > 170㎡简约低奢范,演绎气质非凡的格调!

170㎡简约低奢范,演绎气质非凡的格调!

风格:现代简约 面积:170m² 户型:4室 小区: 海岸城
业主需求
170㎡简约低奢范,演绎气质非凡的格调!-业主需求
本案以现代简约为基底,舒适自然为核心,融合别出心裁的考量,打造精睿低奢、人文艺术的品质居所,户型南北通透,朝南3个卧室及客厅,房间方正,利于改造及空间布局。
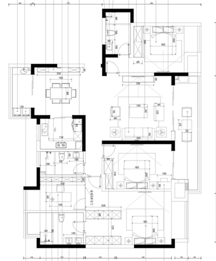
平面布置图
170㎡简约低奢范,演绎气质非凡的格调!-平面布置图
客厅使用纵轴设计,以沙发和茶几组合,搭配两侧单椅的围合手法,拉伸整个客厅的体量感,强化入户的感官,令其更显开阔。
3D全景图
170㎡简约低奢范,演绎气质非凡的格调!-3D全景图图标 170㎡简约低奢范,演绎气质非凡的格调!全景图封面图
#  现代简约  170m²  4室  效果图  #
155
不喜欢
猜你喜欢
关闭
按此效果装修多少钱?
电话咨询 在线咨询 算算我家报价
按此效果装修多少钱?
按此效果装修多少钱?