首页 > 裝修案例 > 香樟园155㎡美式风精品案例

香樟园155㎡美式风精品案例

风格:其他 面积:155m² 户型:4室 小区: 蠡湖香樟园
业主需求
香樟园155㎡美式风精品案例-业主需求
户型南北通透,朝南3个卧室及客厅,房间方正,利于改造及空间布局。
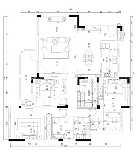
平面布置图
香樟园155㎡美式风精品案例-平面布置图
入户玄关很好的把入户和客厅连接起来,形成独立空间,开放式书房和客厅相连,让客厅功能性上又丰富许多。
3D全景图
香樟园155㎡美式风精品案例-3D全景图图标 香樟园155㎡美式风精品案例全景图封面图
#  其他  155m²  4室  效果图  #
136
不喜欢
猜你喜欢
关闭
按此效果装修多少钱?
电话咨询 在线咨询 算算我家报价
按此效果装修多少钱?
按此效果装修多少钱?