首页 > 裝修案例 > 140㎡美式轻奢风案例

140㎡美式轻奢风案例

风格:其他 面积:140m² 户型:4室 小区: 宝能城
业主需求
140㎡美式轻奢风案例-业主需求
客厅餐厅连通,增加了公共区域,阳台落地窗户增加了空间的采光度。
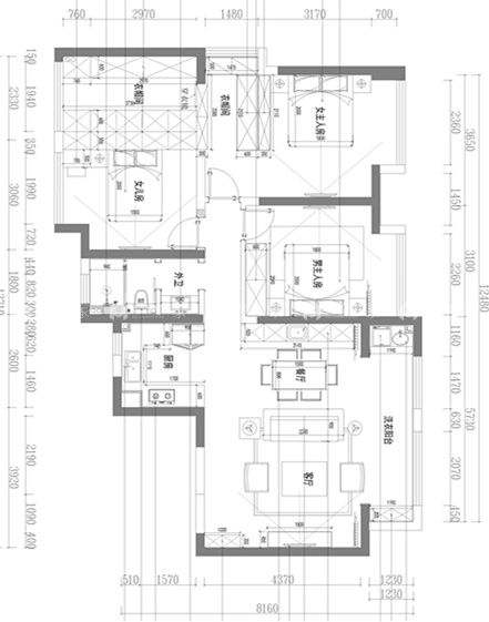
平面布置图
140㎡美式轻奢风案例-平面布置图
客厅餐厅纳入阳台空间,空间连成一体,主卧的卫生间改造成女儿房衣帽间,增加了储物功能。房间内飘窗拆除改造成更多的储物空间。
3D全景图
140㎡美式轻奢风案例-3D全景图图标 140㎡美式轻奢风案例全景图封面图
#  其他  140m²  4室  效果图  #
143
不喜欢
猜你喜欢
关闭
按此效果装修多少钱?
电话咨询 在线咨询 算算我家报价
按此效果装修多少钱?
按此效果装修多少钱?