首页 > 裝修案例 > 静谧通透的现代极简风

静谧通透的现代极简风

风格:现代简约 面积:128m² 户型:3室 小区: 远洋太湖宸章
业主需求
静谧通透的现代极简风-业主需求
客厅及餐厅阳台增加了空间通透性,卧室方正,利用改造。
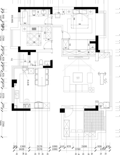
平面布置图
静谧通透的现代极简风-平面布置图
客厅阳台与客厅连通,餐厅与北阳台连通,增设开放式厨房区域,朝南卧室与主卧连通增设衣帽间,增加储物。
3D全景图
静谧通透的现代极简风-3D全景图图标 静谧通透的现代极简风全景图封面图
#  现代简约  128m²  3室  效果图  #
105
不喜欢
猜你喜欢
关闭
按此效果装修多少钱?
电话咨询 在线咨询 算算我家报价
按此效果装修多少钱?
按此效果装修多少钱?