首页 > 裝修案例 > 质朴的舒适的现代简约风

质朴的舒适的现代简约风

风格:现代简约 面积:97m² 户型:3室 小区: 保利中央公园
业主需求
质朴的舒适的现代简约风-业主需求
原始户型分析: 1.户型方正 2.承重墙较多,因此格局上无法做过多的改动。
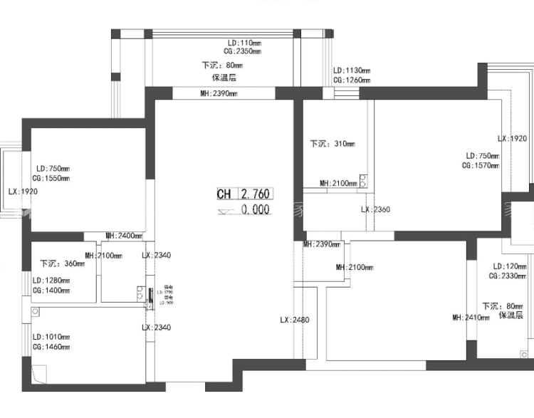
平面布置图
质朴的舒适的现代简约风-平面布置图
平面分析: 1.拆除了主卧的飘窗使空间更大更舒适 2.儿童房设计了高低床使空间更加童趣
3D全景图
质朴的舒适的现代简约风-3D全景图图标 质朴的舒适的现代简约风全景图封面图
#  现代简约  97m²  3室  效果图  #
131
不喜欢
猜你喜欢
关闭
按此效果装修多少钱?
电话咨询 在线咨询 算算我家报价
按此效果装修多少钱?
按此效果装修多少钱?