首页 > 裝修案例 > 风雪无霜 期待华年

风雪无霜 期待华年

业主需求
风雪无霜  期待华年-业主需求 风雪无霜  期待华年-业主需求
★ 案为五口之家,三代同堂,在初次沟通时我们了解到,业主是一位阳光,爱笑,非常热爱生活,也比较注重仪式感。
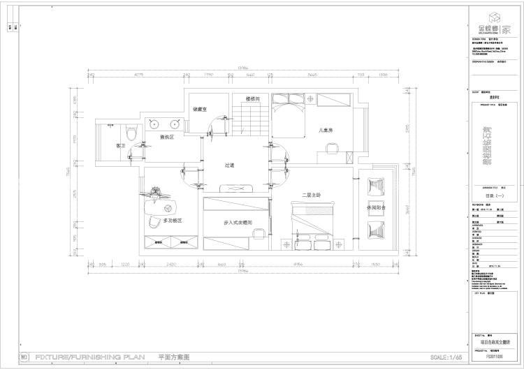
平面布置图
风雪无霜  期待华年-平面布置图 风雪无霜  期待华年-平面布置图
★ 戴总对任何事物都很积极,乐观,喜欢白色,蓝色,金色,对待任何事物都是力求完美。
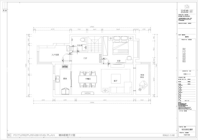
空间效果图
风雪无霜  期待华年-空间效果图 风雪无霜  期待华年-空间效果图
★ 客厅整体色调定位水蓝色,全屋地板人字铺设,明朗干净。
风雪无霜  期待华年-空间效果图
★ 餐厅延续客厅,公用一个吊顶,整个空间非常开阔大气。
风雪无霜  期待华年-空间效果图
★ 卧室做了个性化的搭配,小而精致。
#  现代简约  180m²  跃层/复式  效果图  #
136
不喜欢
猜你喜欢
关闭
按此效果装修多少钱?
电话咨询 在线咨询 算算我家报价
按此效果装修多少钱?
按此效果装修多少钱?
按此效果装修多少钱?
按此效果装修多少钱?
更多相似风格效果
按此效果装修多少钱?
更多相似风格效果
按此效果装修多少钱?
更多相似风格效果
按此效果装修多少钱?
更多相似风格效果
按此效果装修多少钱?