首页 > 裝修案例 > 混缘

混缘

风格:雅致新中 面积:127m² 户型:3室 小区: 碧桂园
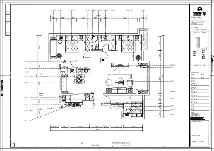
业主需求
混缘-业主需求
户型采光良好,每个空间都有亮窗,区域划分明显,客餐厅独立的空间,双阳台,厨房空间不是太大
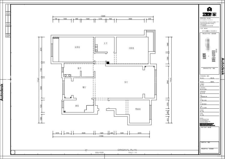
平面布置图
混缘-平面布置图
跟客户沟通以后,餐厅阳台考虑打掉做储物空间,也可以只能厨房的储物功能,入户没有鞋柜位置,做镶嵌式的鞋柜
空间效果图
混缘-空间效果图 混缘-空间效果图 混缘-空间效果图
效果图新中式,整体灰白为主,地面灰色给人成熟稳重,墙面留白,不会觉得空间压抑,局部吊顶区域划分,只能采光。背景墙石材与护墙板结合更高端大气
混缘-空间效果图
餐厅简单装饰挂画,简单大方
混缘-空间效果图
卧室空间飘窗做地台,增加储物空间,镂空位置做隔板架,可以摆放装饰用品
#  雅致新中  127m²  3室  效果图  #
198
不喜欢
猜你喜欢
关闭
按此效果装修多少钱?
电话咨询 在线咨询 算算我家报价
按此效果装修多少钱?
按此效果装修多少钱?
更多相似风格效果
按此效果装修多少钱?
更多相似风格效果
按此效果装修多少钱?
更多相似风格效果
按此效果装修多少钱?
更多相似风格效果
按此效果装修多少钱?
更多相似风格效果
按此效果装修多少钱?