首页 > 裝修案例 > 绿野仙踪

绿野仙踪

风格:其他 面积:118m² 户型:3室 小区: 帕提欧
业主需求
绿野仙踪-业主需求
男业主多年从事外贸交易行业,女业主是典型的家庭主妇,孩子年幼且好动。喜欢欢快安逸的风格类型,想要将家中打造出温馨的氛围。
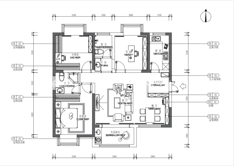
平面布置图
绿野仙踪-平面布置图
本案采用简美装饰风格以功能舒适为导向空间做了合理细致的规划。 “简.美”是我们对生活的希冀希望一切回归本真“简”并不意味着简单、单调和生活内容的删减。而是直接表达我们对生活的热爱。 本案摒弃了繁华的装饰整体采用明快的色调设计风格上结合新美式家具配合美式文化元素从复杂到简单从整体到局部每个地方都显得干净利落打造个性品味的生活态度。
空间效果图
绿野仙踪-空间效果图
空间在优雅的浅草绿色彩的包围之下,弥漫一室温馨情韵。入户利用鞋柜隔离出一个入户玄关,既增加了储物空间,又增加了隐秘性和分隔客餐厅的界限。沙发的素色对应暗纹的抱枕,就像流苏点缀,就像乐谱上巧妙安排的装饰音,令空间的旋律舒缓而灵动。墙壁上的挂画,色彩的恣意相融,充分的宣扬自我。
绿野仙踪-空间效果图
空间在优雅的浅草绿色彩的包围之下,弥漫一室温馨情韵。入户利用鞋柜隔离出一个入户玄关,既增加了储物空间,又增加了隐秘性和分隔客餐厅的界限。沙发的素色对应暗纹的抱枕,就像流苏点缀,就像乐谱上巧妙安排的装饰音,令空间的旋律舒缓而灵动。墙壁上的挂画,色彩的恣意相融,充分的宣扬自我。
绿野仙踪-空间效果图 绿野仙踪-空间效果图
以柔和的淡蓝色为主色调辅以深蓝色进行搭配整体给人感觉明亮而恬静。榻榻米床柜结合,可以满足功能需要,富有童趣的灯饰给空间一种观赏性美感。 书房兼具合理的储物功能并采用立体的墙面装饰营造了书房的曼妙仙境简洁富有层次的吊顶又丰富了整个空间的灵动性。
#  其他  118m²  3室  效果图  #
103
不喜欢
猜你喜欢
关闭
按此效果装修多少钱?
电话咨询 在线咨询 算算我家报价
按此效果装修多少钱?
按此效果装修多少钱?
更多相似风格效果
按此效果装修多少钱?
更多相似风格效果
按此效果装修多少钱?
更多相似风格效果
按此效果装修多少钱?
更多相似风格效果
按此效果装修多少钱?