首页 > 裝修案例 > 单身生活里的小精致

单身生活里的小精致

风格:原木风 面积:87m² 户型:2室 小区: 名仕家园
业主需求
单身生活里的小精致-业主需求
业主就一个要求:拒绝刻板、不落俗套,怎么好看就怎么设计!
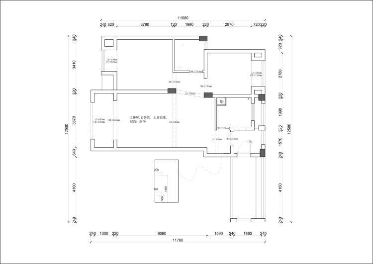
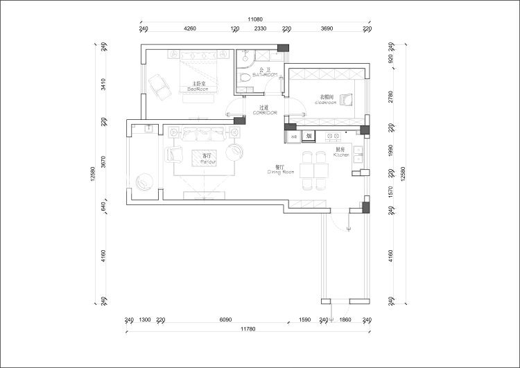
平面布置图
单身生活里的小精致-平面布置图
业主是一位舞蹈老师,平时就一个人生活,一定要有一个漂亮的衣帽间,房子是单身公寓性质,只要一个房间就可以!
空间效果图
单身生活里的小精致-空间效果图
灰色作为客厅区的重点色,高纯度的色彩也让整个空间的更有质感,温暖柔软的天鹅绒沙发,缓解墙体的硬朗感,用浓妆淡抹总相宜来形容实在合适不过了!
单身生活里的小精致-空间效果图
原始户型的餐厨区非常狭窄阴暗,于是我们打通了非承重墙,解决原餐厨区的缺点,开放式厨房和餐厅融为一体!
单身生活里的小精致-空间效果图 单身生活里的小精致-空间效果图
卧室墙面的雾霾蓝满足了女业主一开始对房屋的期许 其次这个低调的色调让真正休息放松的人们达到它最大的目的 小而温馨,功能完善!
#  原木风  87m²  2室  效果图  #
129
不喜欢
猜你喜欢
关闭
按此效果装修多少钱?
电话咨询 在线咨询 算算我家报价
按此效果装修多少钱?
按此效果装修多少钱?
更多相似风格效果
按此效果装修多少钱?
更多相似风格效果
按此效果装修多少钱?
更多相似风格效果
按此效果装修多少钱?
更多相似风格效果
按此效果装修多少钱?