首页 > 裝修案例 > 秋雨台115㎡北欧

秋雨台115㎡北欧

风格:原木风 面积:115m² 户型:3室 小区: 秋雨台
业主需求
秋雨台115㎡北欧-业主需求
3 室 2 厅 1 厨 2 卫 1 阳台。
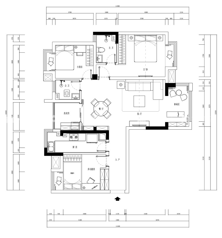
平面布置图
秋雨台115㎡北欧-平面布置图
平面设计图
空间效果图
秋雨台115㎡北欧-空间效果图
儿子喜爱北欧,爷爷喜爱新中式,故根据已买家具将两种风格相融合。
秋雨台115㎡北欧-空间效果图
客餐厅整体布局轻松休闲。
秋雨台115㎡北欧-空间效果图 秋雨台115㎡北欧-空间效果图 秋雨台115㎡北欧-空间效果图
主卧打造轻奢风格。 小孩房放置业主喜爱的原木色。 书房作为男主人的独立空间,也以业主喜爱的原木色为基调。
#  原木风  115m²  3室  效果图  #
196
不喜欢
猜你喜欢
关闭
按此效果装修多少钱?
电话咨询 在线咨询 算算我家报价
按此效果装修多少钱?
按此效果装修多少钱?
更多相似风格效果
按此效果装修多少钱?
更多相似风格效果
按此效果装修多少钱?
更多相似风格效果
按此效果装修多少钱?
更多相似风格效果
按此效果装修多少钱?
更多相似风格效果
按此效果装修多少钱?