首页 > 裝修案例 > 灰色和木色的碰撞,简约而不失大气,营造出家的归属感

灰色和木色的碰撞,简约而不失大气,营造出家的归属感

风格:现代简约 面积:142m² 户型:4室 小区: 保利时代二期
业主需求
灰色和木色的碰撞,简约而不失大气,营造出家的归属感-业主需求
有一个女儿,常住人口三人,喜欢现代简约,对储物要求很高,喜欢榻榻米,希望有一个独立的书房,空间分布明确
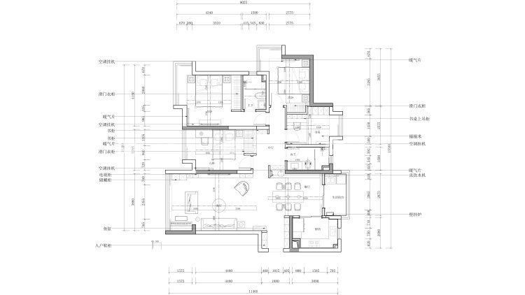
平面布置图
灰色和木色的碰撞,简约而不失大气,营造出家的归属感-平面布置图
本案整体色调偏灰色,在灰色调里面穿插木色和白色的材质,打破灰色的暗度,增加空间的亮度。整个方案考虑了空间格局的同时还考虑了最大化利用空间,做到最大程度的不浪费。
空间效果图
灰色和木色的碰撞,简约而不失大气,营造出家的归属感-空间效果图 灰色和木色的碰撞,简约而不失大气,营造出家的归属感-空间效果图
客厅电视背景墙采用了一体电视柜,增加空间储藏功能。
灰色和木色的碰撞,简约而不失大气,营造出家的归属感-空间效果图 灰色和木色的碰撞,简约而不失大气,营造出家的归属感-空间效果图
餐厅的茶水台提高了生活的便利性,茶水台的背景采用了大理石背景墙,使整个空间看起来大气。
灰色和木色的碰撞,简约而不失大气,营造出家的归属感-空间效果图 灰色和木色的碰撞,简约而不失大气,营造出家的归属感-空间效果图 灰色和木色的碰撞,简约而不失大气,营造出家的归属感-空间效果图
过道转角增加了书柜,在增加储藏功能的同时打破了入户直对卧室门的格局。
#  现代简约  142m²  4室  效果图  #
132
不喜欢
猜你喜欢
关闭
按此效果装修多少钱?
电话咨询 在线咨询 算算我家报价
按此效果装修多少钱?
按此效果装修多少钱?
更多相似风格效果
按此效果装修多少钱?
更多相似风格效果
按此效果装修多少钱?
更多相似风格效果
按此效果装修多少钱?
更多相似风格效果
按此效果装修多少钱?
更多相似风格效果
按此效果装修多少钱?
更多相似风格效果
按此效果装修多少钱?
更多相似风格效果
按此效果装修多少钱?