首页 > 裝修案例 > 200大户型简欧,简约而不失奢华

200大户型简欧,简约而不失奢华

风格:原木风 面积:200m² 户型:4室
业主需求
200大户型简欧,简约而不失奢华-业主需求
客户想要大气上档次的家
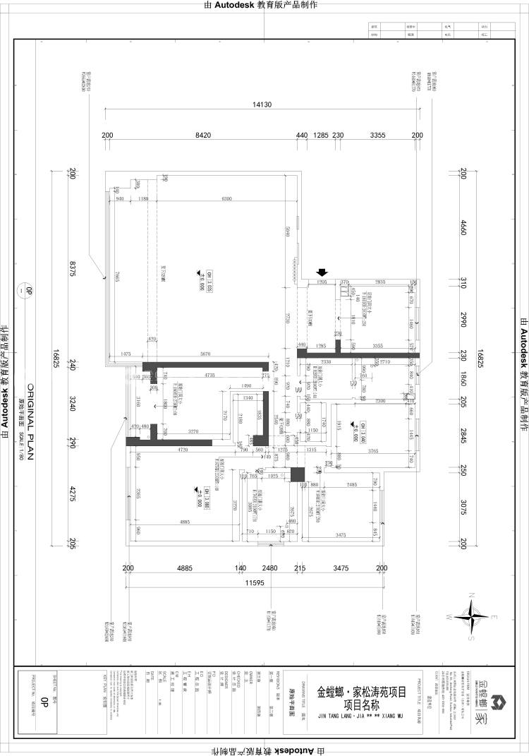
平面布置图
200大户型简欧,简约而不失奢华-平面布置图
设计师从古典欧式中找出灵感,添加现代的设计元素,提升了整个家的豪华感
空间效果图
200大户型简欧,简约而不失奢华-空间效果图
浅色的硬装配上深色的软装,让客厅与餐厅完美得融合在一起
200大户型简欧,简约而不失奢华-空间效果图
餐厅不仅有餐桌,还有供人休闲的茶几休闲椅,生活十分惬意
200大户型简欧,简约而不失奢华-空间效果图
主卧运用了大量欧式元素,凸显了业主高贵的身份
200大户型简欧,简约而不失奢华-空间效果图
客卧简单的线条,简约中不缺少温馨
200大户型简欧,简约而不失奢华-空间效果图
卫生间不仅满足了日常的需求,也给人一种美的享受
#  原木风  200m²  4室  效果图  #
178
不喜欢
猜你喜欢
关闭
按此效果装修多少钱?
电话咨询 在线咨询 算算我家报价
按此效果装修多少钱?
按此效果装修多少钱?
更多相似风格效果
按此效果装修多少钱?
更多相似风格效果
按此效果装修多少钱?
更多相似风格效果
按此效果装修多少钱?
更多相似风格效果
按此效果装修多少钱?
更多相似风格效果
按此效果装修多少钱?