首页 > 裝修案例 > 新中式新古典

新中式新古典

风格:雅致新中 面积:85m² 户型:2室
业主需求
新中式新古典-业主需求
户型比较小,客户想让整个房子实用点
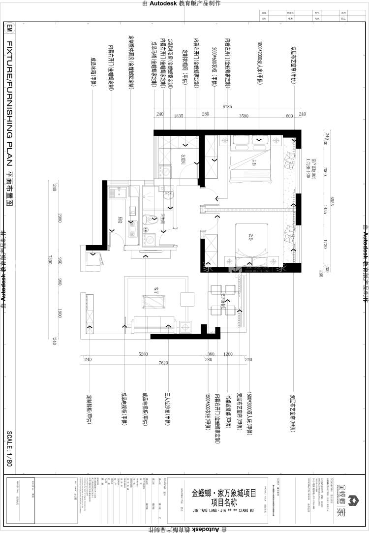
平面布置图
新中式新古典-平面布置图
充分利用仅有的空间,让家显得既充实,也不让人感觉压抑
空间效果图
新中式新古典-空间效果图
玄关与客厅利用木隔断来区分,既美观又实用
新中式新古典-空间效果图
餐厅的桌子采用了中式大长桌,既能当餐桌,也能当书桌
#  雅致新中  85m²  2室  效果图  #
165
不喜欢
猜你喜欢
关闭
按此效果装修多少钱?
电话咨询 在线咨询 算算我家报价
按此效果装修多少钱?
按此效果装修多少钱?
更多相似风格效果
按此效果装修多少钱?
更多相似风格效果
按此效果装修多少钱?