首页 > 裝修案例 > 低调且华丽的港式轻奢风,大宅就该这样设计

低调且华丽的港式轻奢风,大宅就该这样设计

风格:现代简约 面积:335m² 户型:别墅 小区: 碧桂园
业主需求
低调且华丽的港式轻奢风,大宅就该这样设计-业主需求 低调且华丽的港式轻奢风,大宅就该这样设计-业主需求 低调且华丽的港式轻奢风,大宅就该这样设计-业主需求 低调且华丽的港式轻奢风,大宅就该这样设计-业主需求
本案为港式轻奢风格,本案业主喜爱低调且华丽的生活。负一楼户型户型方正,空间结构合理。一二三楼户型方正,空间结构合理,各空间充分利用,采光充足。
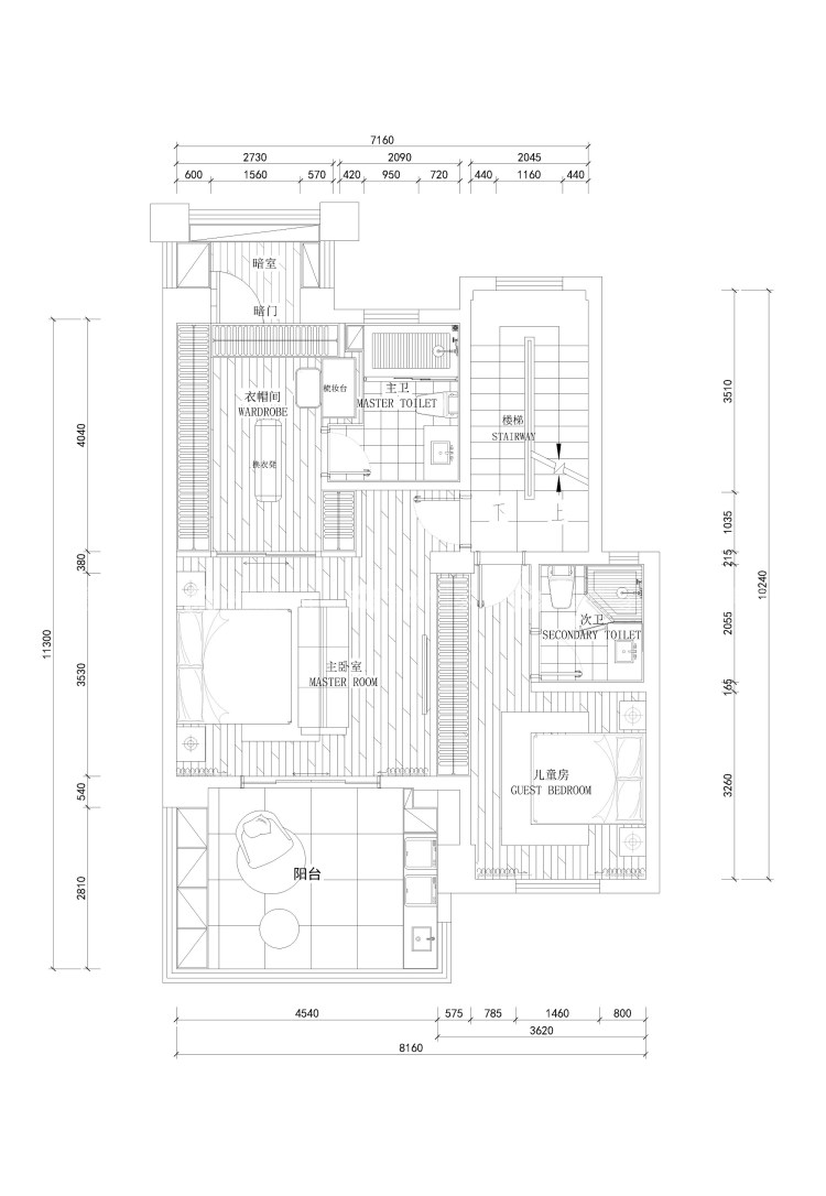
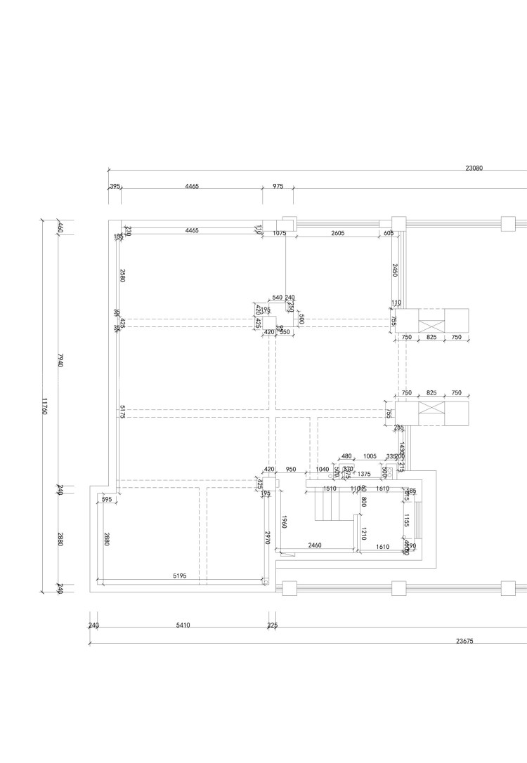
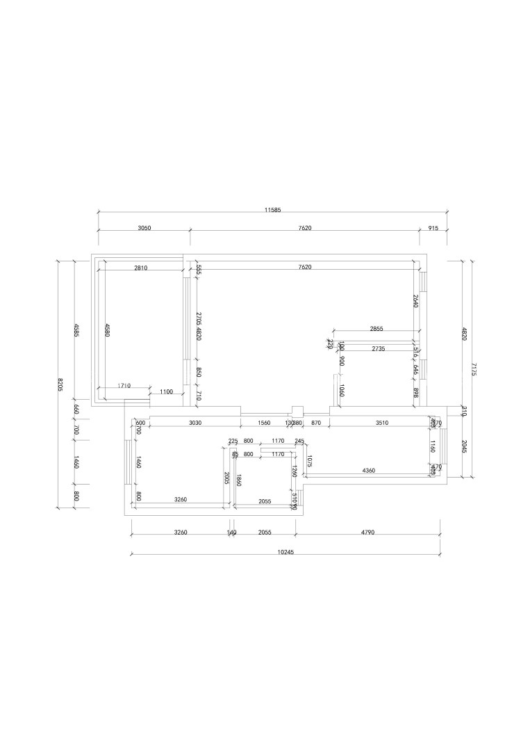
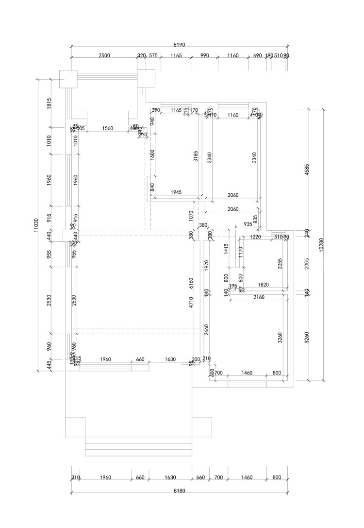
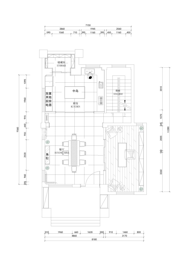
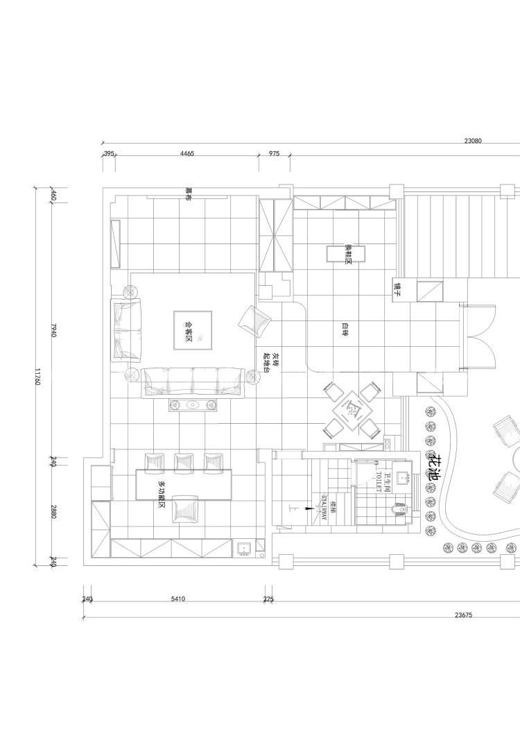
平面布置图
低调且华丽的港式轻奢风,大宅就该这样设计-平面布置图 低调且华丽的港式轻奢风,大宅就该这样设计-平面布置图 低调且华丽的港式轻奢风,大宅就该这样设计-平面布置图 低调且华丽的港式轻奢风,大宅就该这样设计-平面布置图
负一层,具休闲娱乐于一身,最大程度的发挥空间的使用率。一层,餐厅、书房、厨房之间留有四移门,既起到空间划分的作用,又很好的起到了保护业主隐私的效果。二层,重新规划墙体位置与房门开启位置,方便主卧室与儿童房都有足够使用空间。三层,将整层做成一个休息区域,最大程度的扩大别墅的优势,将动区与静区完美的分割开来。
空间效果图
低调且华丽的港式轻奢风,大宅就该这样设计-空间效果图
石材砖与木饰面的碰撞,产生层次分明的空间感,各个色调的搭配,使整个空间丰富多彩。
低调且华丽的港式轻奢风,大宅就该这样设计-空间效果图
顶面地面遥相呼应,异型的灯具,咖色的墙面,墨绿的餐厅背景,处处显露出简易的奢华感。
低调且华丽的港式轻奢风,大宅就该这样设计-空间效果图
看似简洁的装饰,实则每一处都有讲究,既有生活的随意感,又有视觉的平衡。
低调且华丽的港式轻奢风,大宅就该这样设计-空间效果图
曲线与人体接触时完美地吻合在一起,使其与人体协调,倍感舒适。
#  现代简约  335m²  别墅  效果图  #
114
不喜欢
猜你喜欢
关闭
按此效果装修多少钱?
电话咨询 在线咨询 算算我家报价
按此效果装修多少钱?
按此效果装修多少钱?
按此效果装修多少钱?
按此效果装修多少钱?
按此效果装修多少钱?
按此效果装修多少钱?
按此效果装修多少钱?
按此效果装修多少钱?
更多相似风格效果
按此效果装修多少钱?
更多相似风格效果
按此效果装修多少钱?
更多相似风格效果
按此效果装修多少钱?
更多相似风格效果
按此效果装修多少钱?