首页 > 裝修案例 > 日式简约住宅,设计回归生活本质

日式简约住宅,设计回归生活本质

风格:禅意日式 面积:130m² 户型:3室 小区: 建业花园里
业主需求
日式简约住宅,设计回归生活本质-业主需求
本案为日式风格,业主是媒体工作人员,年轻夫妻,目前女主刚刚诞下一位小宝宝,后期老人可能会过来居住,女士平时喜欢放松休闲舒适的生活,所以最终选定要日式休闲风。户型方正,空间结构相对合理,采光充足,南北通透,入户玄关略显狭窄,厨房餐厅相对较小,阳台贯通式,没地方放洗衣机,卧室空间收纳及布局需重新考虑。
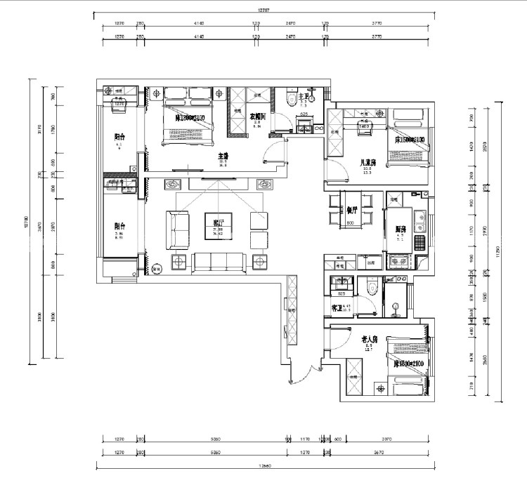
平面布置图
日式简约住宅,设计回归生活本质-平面布置图
入户空间合理设计储物收纳;阳台门拆除后客餐厅空气及采光充足;阳台分割两段,合理利用了两个阳台的功能,客卫干湿分离;厨房合理利用餐厅区域空间,增大空间使用面积;主卫的墙体内移,增大了主卧面积,从而挤出来个衣帽间。
空间效果图
日式简约住宅,设计回归生活本质-空间效果图 日式简约住宅,设计回归生活本质-空间效果图 日式简约住宅,设计回归生活本质-空间效果图
客厅采用无主灯式设计,使得整个空间简洁明亮,整体原木色木饰面电视背景墙,搭配原木色沙发,电视柜同样采用简洁的隔板式设计,沙发旁边的书架营造出轻松、不受拘束的空间。
日式简约住宅,设计回归生活本质-空间效果图
客厅旁边便是餐厅,同样采用简洁的餐桌,搭配日式的浮世绘挂画,营造出温馨的餐厅氛围,旁边的西厨式设计,延伸了厨房的功能。
日式简约住宅,设计回归生活本质-空间效果图
主卧因为隔出来了衣帽间,整个空间只放了一张大床,显得干净明亮,墙上的折纸扇和床头挂画,给人以一种清雅、淡然的美好。卧室空间休息更加舒服。旁边阳台的书桌,也增加了看书学习的临时空间。
日式简约住宅,设计回归生活本质-空间效果图
儿童房为孩子以后成长过程中打造新的主题提供条件。随着年岁长大希望这些烦恼在这间童趣小屋里也最终化为快乐记忆伴随时光成长。
日式简约住宅,设计回归生活本质-空间效果图
老人房简洁实用,没有多余的装饰,让老人在这里可以得到很好的休憩。
日式简约住宅,设计回归生活本质-空间效果图
主卫空间方正,合理利用空间布局,定制储物架增加的卫生间储物功能,卫生间更加整洁干净。
日式简约住宅,设计回归生活本质-空间效果图 日式简约住宅,设计回归生活本质-空间效果图
客卫空间狭长,合理利用空间布局,淋浴房设计形成干湿分离,墙上设置壁龛,合理利用了空间。卫生间更加整洁干净。
日式简约住宅,设计回归生活本质-空间效果图
厨房,采用U型设计,吊柜设计采用烟机柜形式增大储物空间,台面洗切炒顺序操作方便,操作台插座合理设计,高柜里嵌入了蒸箱烤箱,本身不大的整个空间利用率极高。
#  禅意日式  130m²  3室  效果图  #
129
不喜欢
猜你喜欢
关闭
按此效果装修多少钱?
电话咨询 在线咨询 算算我家报价
按此效果装修多少钱?
按此效果装修多少钱?
更多相似风格效果
按此效果装修多少钱?
更多相似风格效果
按此效果装修多少钱?
更多相似风格效果
按此效果装修多少钱?
更多相似风格效果
按此效果装修多少钱?
更多相似风格效果
按此效果装修多少钱?
更多相似风格效果
按此效果装修多少钱?
更多相似风格效果
按此效果装修多少钱?
更多相似风格效果
按此效果装修多少钱?
更多相似风格效果
按此效果装修多少钱?
更多相似风格效果
按此效果装修多少钱?
更多相似风格效果
按此效果装修多少钱?