首页 > 裝修案例 > 新中式-心之归处是故乡

新中式-心之归处是故乡

风格:雅致新中 面积:350m² 户型:别墅
业主需求
新中式-心之归处是故乡-业主需求 新中式-心之归处是故乡-业主需求 新中式-心之归处是故乡-业主需求
三层别墅,负一层赠送空间,全部用来休闲娱乐,客厅4米超高层高
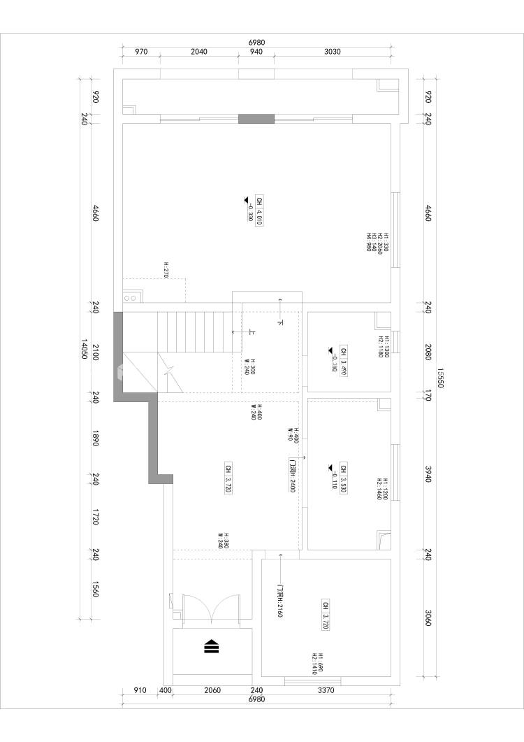
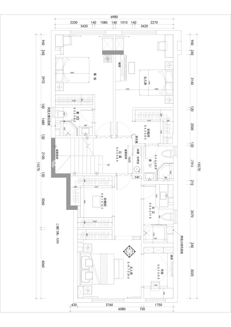
平面布置图
新中式-心之归处是故乡-平面布置图 新中式-心之归处是故乡-平面布置图 新中式-心之归处是故乡-平面布置图
业主喜欢新中式,而将中国的传统文化融入到现代人的生活方式中,简与雅做到了极致,使之既能传达出中式的传统神韵,沉淀浮躁的心性,抒写着久违的东方情怀。
空间效果图
新中式-心之归处是故乡-空间效果图 新中式-心之归处是故乡-空间效果图
客厅柔和的色调,禅韵悠悠,大道至简的陈设理念,有朋远来,不及乐乎,邀至厅堂,客人上座,主人陪同,清茶点心,谈笑风生,书写中式的典雅与庄重。
新中式-心之归处是故乡-空间效果图 新中式-心之归处是故乡-空间效果图
餐厅简洁的同时又增加了储物空间,餐边柜整体效果表现舒适合理。传承优雅、遵行简约精致之风。
新中式-心之归处是故乡-空间效果图 新中式-心之归处是故乡-空间效果图
主卧背景皮质硬包加胡桃木,搭配不锈钢条,体现空间的层次和优雅。
#  雅致新中  350m²  别墅  效果图  #
135
不喜欢
猜你喜欢
关闭
按此效果装修多少钱?
电话咨询 在线咨询 算算我家报价
按此效果装修多少钱?
按此效果装修多少钱?
按此效果装修多少钱?
按此效果装修多少钱?
按此效果装修多少钱?
按此效果装修多少钱?
更多相似风格效果
按此效果装修多少钱?
更多相似风格效果
按此效果装修多少钱?
更多相似风格效果
按此效果装修多少钱?
更多相似风格效果
按此效果装修多少钱?
更多相似风格效果
按此效果装修多少钱?
更多相似风格效果
按此效果装修多少钱?