首页 > 裝修案例 > 小平层也能做出华美的宫廷风

小平层也能做出华美的宫廷风

风格:原木风 面积:127m² 户型:3室 小区: 万达广场
业主需求
小平层也能做出华美的宫廷风-业主需求
127平三户,业主喜欢欧式华丽的装修风格,喜欢高调奢华的居家氛围。
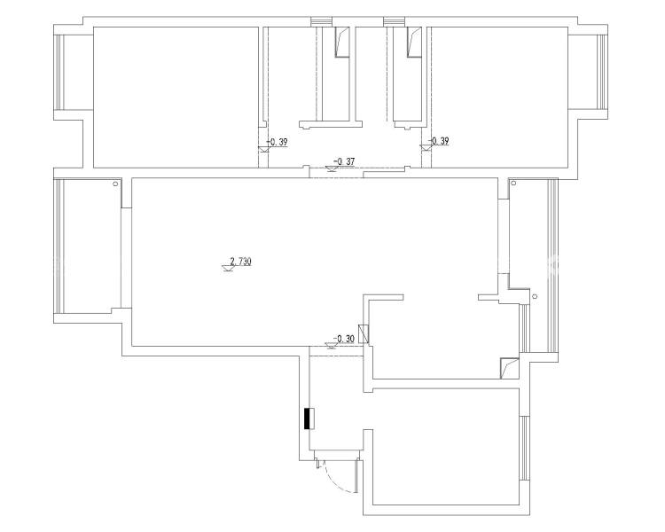
平面布置图
小平层也能做出华美的宫廷风-平面布置图
设计师对平面进行了合理布局,将内阳台打通,扩展了客餐厅的采光和使用空间。
空间效果图
小平层也能做出华美的宫廷风-空间效果图
金碧辉煌的欧式风客厅,米色的花纹墙纸,宽绰的米色真皮沙发,彰显业主的华贵身份。
小平层也能做出华美的宫廷风-空间效果图
奢华的餐厅主灯,温馨的情调氛围,欧式宫廷的仪式感油然而生。
小平层也能做出华美的宫廷风-空间效果图 小平层也能做出华美的宫廷风-空间效果图
厚重华丽的窗帘帷幔,豪华的床头背景,紫色高柜的床头休憩凳,尽显业主的生活品位。
小平层也能做出华美的宫廷风-空间效果图
浅绿色的儿童上下床,别具特色的蜂窝状主灯,营造儿童快乐的成长空间。
小平层也能做出华美的宫廷风-空间效果图
小而精致的书房,满足业主偶尔在家办公的需求。
#  原木风  127m²  3室  效果图  #
193
不喜欢
猜你喜欢
关闭
按此效果装修多少钱?
电话咨询 在线咨询 算算我家报价
按此效果装修多少钱?
按此效果装修多少钱?
更多相似风格效果
按此效果装修多少钱?
更多相似风格效果
按此效果装修多少钱?
更多相似风格效果
按此效果装修多少钱?
更多相似风格效果
按此效果装修多少钱?
更多相似风格效果
按此效果装修多少钱?
更多相似风格效果
按此效果装修多少钱?