首页 > 裝修案例 > 清新自然,淡雅生活,240平田园风格

清新自然,淡雅生活,240平田园风格

风格:其他 面积:240m² 户型:别墅 小区: 领秀新城
业主需求
清新自然,淡雅生活,240平田园风格-业主需求 清新自然,淡雅生活,240平田园风格-业主需求 清新自然,淡雅生活,240平田园风格-业主需求
本案为田园风格,业主是一位非常爱家的女士,对于田园的风格异常喜爱,喜爱它的宁静致远。一层各个空间具有独立性,各有分工,互不干涉。二三层各个空间采光很好,户型方正,功能分布均匀。
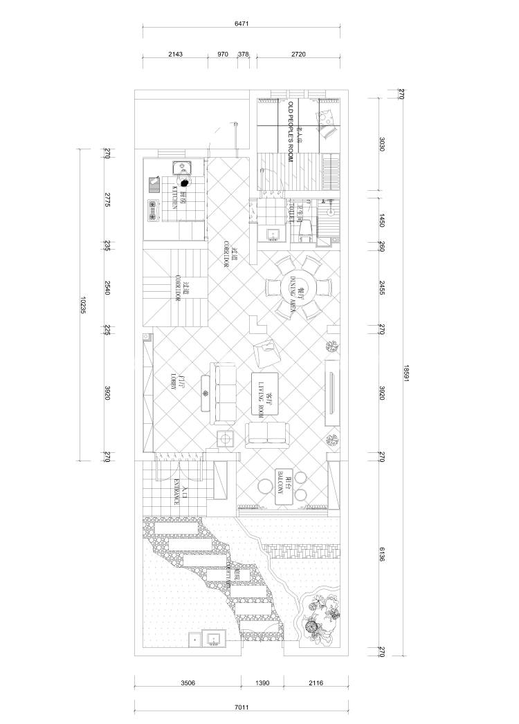
平面布置图
清新自然,淡雅生活,240平田园风格-平面布置图 清新自然,淡雅生活,240平田园风格-平面布置图 清新自然,淡雅生活,240平田园风格-平面布置图
一层在原来安装电梯地方进行一些加建,使空餐厅分离开来,使得使用率大大提升。 二层书房棋牌室都是加建出来,使得房屋气质脱颖而出。 三层加建出来的茶室与洗衣房,不仅提供了生活实用性,也让整体空间美观起来。
空间效果图
清新自然,淡雅生活,240平田园风格-空间效果图 清新自然,淡雅生活,240平田园风格-空间效果图
一道道的实木假梁,搭配雅致的主灯,各类花色软装家具,充满浓浓家的气息。各个角度都采用圆弧设计,使得整个空间显得圆润。
清新自然,淡雅生活,240平田园风格-空间效果图
地面拼花采用纯手工铺贴。保证每一寸都自然,优美。
清新自然,淡雅生活,240平田园风格-空间效果图
别致的收物架,一面整墙的涂鸦喷漆,整个空间都显得清新脱俗。
清新自然,淡雅生活,240平田园风格-空间效果图
嵌入式的书柜,让整个空间看起来更为整洁。
清新自然,淡雅生活,240平田园风格-空间效果图
厨房并没有使用常规的铝扣板吊顶,采用石膏板配合实木假梁,作为开放式厨房,和各个空间完美融合。
清新自然,淡雅生活,240平田园风格-空间效果图
主卫采用石砖堆砌的浴池,成品的桑拿房,墙面的瓷片花砖,绿色的植物,映射出不一样的田园气息。
清新自然,淡雅生活,240平田园风格-空间效果图
一层卫生间桑拿木的顶面,各异的墙地砖,无不透露一个具有别致优美的卫浴。
清新自然,淡雅生活,240平田园风格-空间效果图
幽静的石路,芬香的花园,使用的菜园,组成一个雅致的庭院。
#  其他  240m²  别墅  效果图  #
187
不喜欢
猜你喜欢
关闭
按此效果装修多少钱?
电话咨询 在线咨询 算算我家报价
按此效果装修多少钱?
按此效果装修多少钱?
按此效果装修多少钱?
按此效果装修多少钱?
按此效果装修多少钱?
按此效果装修多少钱?
更多相似风格效果
按此效果装修多少钱?
更多相似风格效果
按此效果装修多少钱?
更多相似风格效果
按此效果装修多少钱?
更多相似风格效果
按此效果装修多少钱?
更多相似风格效果
按此效果装修多少钱?
更多相似风格效果
按此效果装修多少钱?
更多相似风格效果
按此效果装修多少钱?
更多相似风格效果
按此效果装修多少钱?
更多相似风格效果
按此效果装修多少钱?