首页 > 裝修案例 > 新中式+吧台?大气又时尚

新中式+吧台?大气又时尚

风格:雅致新中 面积:207m² 户型:4室 小区: 荣盛观邸
业主需求
新中式+吧台?大气又时尚-业主需求
原始结构部分空间不合理,门厅区域小,入户门直接对着主卧室门。
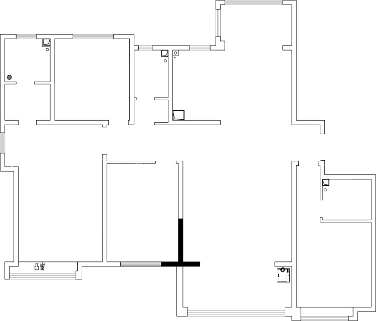
平面布置图
新中式+吧台?大气又时尚-平面布置图
通过户型规划设计,把入户门正冲主卧门风水问题解决,增加衣帽间空间,把沙发背景拆除做吧台处理,把书房做开敞式与客餐厅融合,彰显客餐厅书房公共区域大气。
空间效果图
新中式+吧台?大气又时尚-空间效果图 新中式+吧台?大气又时尚-空间效果图 新中式+吧台?大气又时尚-空间效果图 新中式+吧台?大气又时尚-空间效果图 新中式+吧台?大气又时尚-空间效果图 新中式+吧台?大气又时尚-空间效果图
沙发背景做留白处理,使空间重点往书房延伸,书房背景做博古架与山型壁画处理,大气磅礴,所谓靠山处理。
新中式+吧台?大气又时尚-空间效果图
餐厅做开敞式厨房,餐桌做圆桌处理,顶面装饰电扇灯,整体融汇贯通。
#  雅致新中  207m²  4室  效果图  #
该案例设计师
金螳螂家装修设计师蔡少雄
蔡少雄
设计经验 10年以上
更多设计案例
149
不喜欢
猜你喜欢
关闭
按此效果装修多少钱?
电话咨询 在线咨询 算算我家报价
按此效果装修多少钱?
按此效果装修多少钱?
更多相似风格效果
按此效果装修多少钱?
更多相似风格效果
按此效果装修多少钱?
更多相似风格效果
按此效果装修多少钱?
更多相似风格效果
按此效果装修多少钱?
更多相似风格效果
按此效果装修多少钱?
更多相似风格效果
按此效果装修多少钱?
更多相似风格效果
按此效果装修多少钱?