首页 > 裝修案例 > 新中式也可以清新优雅

新中式也可以清新优雅

风格:雅致新中 面积:141m² 户型:3室 小区: 中贸广场
业主需求
新中式也可以清新优雅-业主需求
本案是一套三居室,业主装修过程中最大程度地配合了设计方案的落地,最后呈现出这样一套清新优雅的新中式效果,以现代空间手法来体现中国韵味的设计,空间基调以浅色为主,更为休闲,体现出现代人对传统文化的传承。
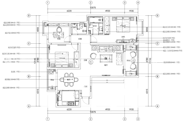
平面布置图
新中式也可以清新优雅-平面布置图
人,诗意地栖居在大地上。自古以来,文人雅士寄情山水、吟诗作画,即是诗意栖居的体现,他们富于人文雅趣的生活方式,依然是许多现代人心中的追求和向往。
空间效果图
新中式也可以清新优雅-空间效果图
硬装的表达,在材质上采用了石材,诉说着新中式、新艺术的生活态度。通过自然元素带来的生机感,将整个空间塑造出沉稳安静的格调。
新中式也可以清新优雅-空间效果图
实木丝质软包座椅,形式讲究的餐具、挂画、花艺放置,在精雕细琢的细节里传达韵味,丰富居者的视觉感受。
新中式也可以清新优雅-空间效果图 新中式也可以清新优雅-空间效果图
不同材质相融相生,尽显清雅与平和,主卧整体空间色彩与形式以及丰富的细节呈现出主人低调高雅的生活品味。
新中式也可以清新优雅-空间效果图
醉墨香,阅金经,畅怀人生大趣,内敛蕴藏,纳尽乾坤,浸润处世智慧,水墨书香渲染出怡然超凡的仕人儒雅。
#  雅致新中  141m²  3室  效果图  #
146
不喜欢
猜你喜欢
关闭
按此效果装修多少钱?
电话咨询 在线咨询 算算我家报价
按此效果装修多少钱?
按此效果装修多少钱?
更多相似风格效果
按此效果装修多少钱?
更多相似风格效果
按此效果装修多少钱?
更多相似风格效果
按此效果装修多少钱?
更多相似风格效果
按此效果装修多少钱?
更多相似风格效果
按此效果装修多少钱?