首页 > 裝修案例 > 柏悦南山140平现代风格设计图

柏悦南山140平现代风格设计图

风格:现代简约 面积:140m² 户型:4室 小区: 柏悦南山
业主需求
柏悦南山140平现代风格设计图-业主需求
四房,年轻小夫妻,目前没有孩子,需要足够的空间感,不希望太拥挤的感觉。
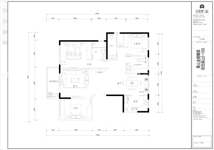
平面布置图
柏悦南山140平现代风格设计图-平面布置图
保持了4个房间,一个房间用于健身房使用,户型南北通透还算不错,唯一缺点客卫太小,本次设计主要解决的是客卫的问题
空间效果图
柏悦南山140平现代风格设计图-空间效果图
采用现代风格的手法,没有更多的造型,主要表现大的直线条体现出空间感,整体色调其实运用了一点北欧的感觉,黑白灰之间的对比。过道吊顶采用了新型材料软膜灯光,解决了不想用太多筒灯来补充照明的要求。
柏悦南山140平现代风格设计图-空间效果图
典型的西餐长条桌的形式不会影响正常人流走向,原木色的感觉中和了整体黑白灰色调的硬冷感。
柏悦南山140平现代风格设计图-空间效果图
灰色乳胶漆的运用,简单明了区分开其他墙体。没有那么繁琐的造型又更好的区分效果。
#  现代简约  140m²  4室  效果图  #
113
不喜欢
猜你喜欢
关闭
按此效果装修多少钱?
电话咨询 在线咨询 算算我家报价
按此效果装修多少钱?
按此效果装修多少钱?
更多相似风格效果
按此效果装修多少钱?
更多相似风格效果
按此效果装修多少钱?
更多相似风格效果
按此效果装修多少钱?