首页 > 裝修案例 > 客餐厅一体化,减少压抑和拥挤感

客餐厅一体化,减少压抑和拥挤感

风格:现代简约 面积:145m² 户型:3室 小区: 锦丽苑
业主需求
客餐厅一体化,减少压抑和拥挤感-业主需求
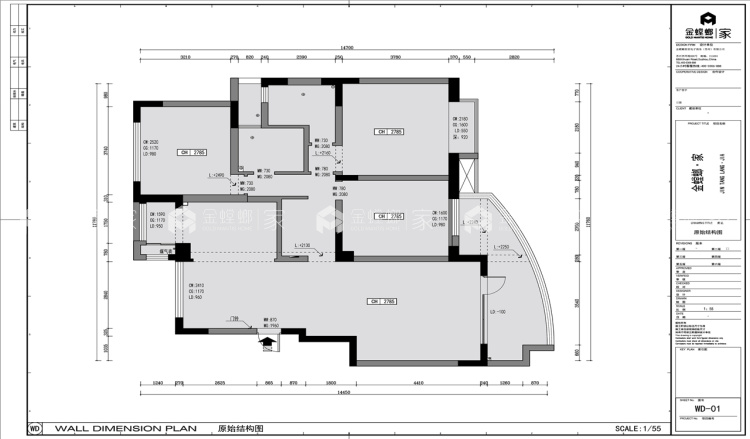
原装修进行全屋翻新改造,阳台扩入厨房,增大厨房空间。过道墙体拆除,改成隔断。增加采光,弥补过道光源不足。南次卧窗改出去,扩大卧室空间。增加房间的采光。主卧需求衣帽间,通过改造内卫和外卫的空间来实现。
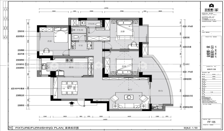
平面布置图
客餐厅一体化,减少压抑和拥挤感-平面布置图
业主喜欢现代风格,追求自然简洁的生活。通过空间格局的改动,材质的搭配。满足业主对空间和美感上的需求。外卫空调平台借用改动实现了干湿分离,方便使用的同时,卫生间更通透。主卫业主只保留台盆和马桶功能,其他的空间都用作衣帽间的位置,这样很大程度上让衣物有更多的空间储存。
空间效果图
客餐厅一体化,减少压抑和拥挤感-空间效果图
客厅电视背景墙木制品不同木色的有机结合、开放式与隐藏式收纳构成。开放式收纳处,根据需要展示的物品合理划分了空间,增加了空间的收纳盒整体性。
客餐厅一体化,减少压抑和拥挤感-空间效果图
客餐厅采用一体化设计,没有设置隔断,减少了空间的压抑感和拥挤感,视觉上也更加通透。餐边柜的定制加入,让空间更具丰富性,实用。原有厨房过道墙体,设计成隔断和储物柜,使空间的采光洒进室内。
客餐厅一体化,减少压抑和拥挤感-空间效果图
主卧宽敞宁静,一面大飘窗,一片室外景色,米色调的彩涂,营造一个温馨的睡眠空间。主卧经过改造有了一个独立的衣帽间,满足了女生对一个衣帽间的执着和追求。
客餐厅一体化,减少压抑和拥挤感-空间效果图
由窗改造成移门,让南次卧的采光充足,空间更舒适。阳台改造成一个休闲舒适的空间,看书、茗茶、聊天。
客餐厅一体化,减少压抑和拥挤感-空间效果图
原有厨房过道墙体,设计成隔断和储物柜,使空间的采光洒进室内。
#  现代简约  145m²  3室  效果图  #
该案例设计师
金螳螂家装修设计师仲银凤
仲银凤
设计经验 10年以上
更多设计案例
134
不喜欢
猜你喜欢
关闭
按此效果装修多少钱?
电话咨询 在线咨询 算算我家报价
按此效果装修多少钱?
按此效果装修多少钱?
更多相似风格效果
按此效果装修多少钱?
更多相似风格效果
按此效果装修多少钱?
更多相似风格效果
按此效果装修多少钱?
更多相似风格效果
按此效果装修多少钱?
更多相似风格效果
按此效果装修多少钱?