首页 > 裝修案例 > 尼盛滨江城110㎡欧式风格装修设计图

尼盛滨江城110㎡欧式风格装修设计图

风格:原木风 面积:110m² 户型:3室 小区: 尼盛滨江城
业主需求
尼盛滨江城110㎡欧式风格装修设计图-业主需求
这套房子是业主打算做婚房用的,所以想要温馨、大方的感觉,女主人又喜欢欧式的优雅,所以最终风格定位成简欧风格。本户型整体平面比较规整,有利于内部分割,面积利用率高。动静线没有交叉,布局理想,私密性较好。
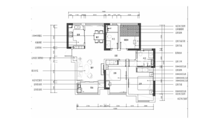
平面布置图
尼盛滨江城110㎡欧式风格装修设计图-平面布置图
对室内空间做了常规的功能划分,为了让餐厅更加的合理化,把餐厅的那面墙敲掉,餐厅空间更大化,厨房的门也由过道的单开门改成了面对餐厅的双移门,这样客餐厅通透性得到了最大化的释放,格局上更加的合理。由于过道有两个梁,所以把过道区域划分了三个吊顶,掩藏了梁体的缺陷,设计上更加的美观。
空间效果图
尼盛滨江城110㎡欧式风格装修设计图-空间效果图
客厅色彩明亮,刚进门就可以看到用木饰面以及木线条结合墙纸做的电视背景墙,吊顶因为要与过道以及餐厅相呼应,所以主要靠主灯来照亮客厅区域。
尼盛滨江城110㎡欧式风格装修设计图-空间效果图
餐厅区域贴的墙纸会让空间看起来更加的温馨,吊顶做了一圈灯带下口处走了回字形石膏线,增加空间的层次感。
尼盛滨江城110㎡欧式风格装修设计图-空间效果图
南次卧的阳台区域纳入了房间使用,房间更大,采光也更加充足,空间得到了最大化的利用。
#  原木风  110m²  3室  效果图  #
135
不喜欢
猜你喜欢
关闭
按此效果装修多少钱?
电话咨询 在线咨询 算算我家报价
按此效果装修多少钱?
按此效果装修多少钱?
更多相似风格效果
按此效果装修多少钱?
更多相似风格效果
按此效果装修多少钱?
更多相似风格效果
按此效果装修多少钱?