首页 > 裝修案例 > 125平工业风的灰色调装修

125平工业风的灰色调装修

风格:现代简约 面积:125m² 户型:3室 小区: 正商智慧城
业主需求
125平工业风的灰色调装修-业主需求 125平工业风的灰色调装修-业主需求
业主夫妻二人是年轻的自由工作者,有一定的经济实力,孩子还在哺乳期,房子主要还是一家三口居住。周遭世界已经足够嘈杂和喧嚣了,我又身处在这样一个很多时候无法逃遁的状态里,因此,家这个绝对属于自己的地方,我希望是完全可以让自己放松、宁静和通透的。 这是屋主的要求,一位实践极简主义生活方式的人。在工作单位附近买下这套房子,应对日常上班的便利。
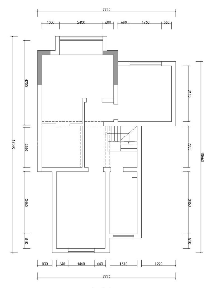
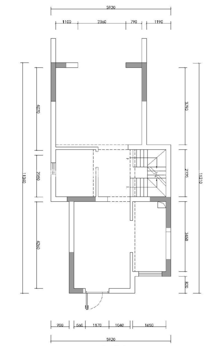
平面布置图
125平工业风的灰色调装修-平面布置图 125平工业风的灰色调装修-平面布置图
原始户型偏长,厨房和卫生间的空间偏小,而过道偏宽,容易浪费空间。二层相对已经是私密的空间,主卧的卫生间改成了衣帽间,生活起来更加方便。
空间效果图
125平工业风的灰色调装修-空间效果图 125平工业风的灰色调装修-空间效果图 125平工业风的灰色调装修-空间效果图
喜爱工业风的男屋主钟情于灰色调,希望室内的空调跟管线皆能外露;而女屋主喜欢温暖乾净的白色调视觉,设计师揉合两者需求,让室内佐入工业风的个性,同时展现温暖质韵,交织出明亮、简约且低彩度的家屋风貌。
125平工业风的灰色调装修-空间效果图
随著工业风的流行,我们对灰色调、暗色系这类的元素接受度越来越高,裸露的灰色混拟土墙、仿岩涂料等等能代替昂贵石材壁面材,不仅能跳脫传统的白色调和別人与众不同,还能赋予家散发出原始天然的粗犷质感。
125平工业风的灰色调装修-空间效果图
大片灰色直线条床头背景墙,仿古砖作为装饰,米白色的窗帘更加轻盈,大片落地窗视野开阔,空间感十足。
125平工业风的灰色调装修-空间效果图
床头背景墙用裸露的红砖,更具有原始风情,深灰色床头呼应了房间整体的色调。简洁的床头灯,把工业风发挥的淋漓精致。
125平工业风的灰色调装修-空间效果图
玄关是空间的引言,而迎接家人的应该是能放心流露喜怒哀乐的信任与安定,一个能夠让人想要归来的住处。材质上选择铁件与木质两种富含自然纹理与触感的元素,色泽相对与许多人工建材更为温润,散发亲切感。
125平工业风的灰色调装修-空间效果图 125平工业风的灰色调装修-空间效果图
对于工作忙碌的屋主来说,减少居家生活所带来的繁杂,节省日常的时间和精力,留给自己更多放松和释压的事物,极简主义便成了他的理想选择。弧形的线条更呈现出力度之美,不仅功能性十足,收阖也十分简单,从內而外,以丰富洗炼的设计语汇,打造出原色系的硬派住宅。
#  现代简约  125m²  3室  效果图  #
160
不喜欢
猜你喜欢
关闭
按此效果装修多少钱?
电话咨询 在线咨询 算算我家报价
按此效果装修多少钱?
按此效果装修多少钱?
按此效果装修多少钱?
按此效果装修多少钱?
更多相似风格效果
按此效果装修多少钱?
更多相似风格效果
按此效果装修多少钱?
更多相似风格效果
按此效果装修多少钱?
更多相似风格效果
按此效果装修多少钱?
更多相似风格效果
按此效果装修多少钱?
更多相似风格效果
按此效果装修多少钱?
更多相似风格效果
按此效果装修多少钱?
更多相似风格效果
按此效果装修多少钱?
更多相似风格效果
按此效果装修多少钱?